Building Summary

Data last updated on: 4/2/2026     Ownership current as of: 3/30/2026     Tax Year: 2026
REID 117706

PIN # 0830-18-7566

Location Address Property Description
1507 ROSEWOOD ST PROP-MASSEY C W/LT#47 LT# 48 PT PL:000012-000016
   
Property Owner Owner's Mailing Address
HEMINGWAY, EMMA;HAMILTON, JOHN
1507 ROSEWOOD ST
DURHAM NC 27701
Parcel
Buildings
Misc Improvements
Land
Deeds
Notes
Sales
Photos
Map
Building Location Address
1507 ROSEWOOD ST
Building Description
RESMS-RES-MS-OR-EQ
Card   of  1
Bldg Type RESIDENTIAL
Units 1
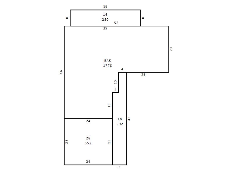
Living Area (SQFT) 1778
Number of Stories 1.00
Style RAN-RANCH
Foundation 04-P-FOOTING/CRWL-SP
Exterior 02-BRICK
Const Type
Heating 05-PACKAGE-HEAT/COOL
Air Cond
Plumbing Baths (Full):   2
Baths (Half):   1
Extra Fixtures:   0
Total Plumbing Fixtures:   8 
Bedrooms 4
Main Body (SQFT) 1778
Year Built 1962
Additions 5
Effective Year 1962
Remodeled 0
Interior Adj.
Other Features
Building Total & Improvement Details

Grade C 100%
Percentage Complete 100
Total Adjusted Replacement Cost New $427,181
Physical Depreciation (% Bad) 0%
Depreciated Value $281,939
Economic Depreciation (% Bad) 0%
Functional Depreciation (% Bad) 0%
Total Depreciated Value $281,939
Market Area Factor 1.00
Building Value $281,939
Misc Improvements Value $203
Total Improvement Value $282,142

Assessed Land Value $124,250
   
Assessed Total Value $406,392



Addition Summary 
StoryTypeCodeArea
1.00 Frame Deck 16 280
1.00 Covered Porch 18 292
1.00 Garage 28 552
1.00 Unfinished Basement 10 700
1.00 Recreation Room 12 726
 
Other Improvements 
UnitsDescriptionItemCodeYear% BadValue
4x4 DIMENSIONS Concrete Slab 1993 55 69
8x4 DIMENSIONS Concrete Slab 1993 55 134
 


Building Sketch
Photograph
Building Sketch Building Photo
(Click sketch for bigger image)




Copyright © 2022 Durham County, North Carolina.