Building Summary

Data last updated on: 10/6/2025     Ownership current as of: 9/18/2025     Tax Year: 2025
REID 117971

PIN # 0831-20-4965

Location Address Property Description
815 RIDGEWAY AVE PINE GROVE PRK DEV/PROP-C OOKE HSNG CORP/LT#21 W P PL:000022-000065
   
Property Owner Owner's Mailing Address
MUKKAVALLI, ARCHANA;JHA, SIDDHARTH
815 RIDGEWAY AVE
DURHAM NC 27701
Parcel
Buildings
Misc Improvements
Land
Deeds
Notes
Sales
Photos
Map
Building Location Address
815 RIDGEWAY AVE
Building Description
RESFR-RES-FRM-OR-EQ
Card   of  1
Bldg Type RESIDENTIAL
Units 1
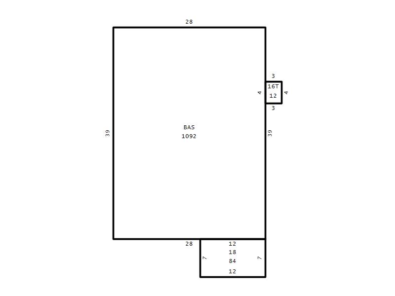
Living Area (SQFT) 1092
Number of Stories 1.00
Style RAN-RANCH
Foundation 04-P-FOOTING/CRWL-SP
Exterior 08-VINYL/ALUMINUM
Const Type
Heating 03-FORCED-HOT-AIR
Air Cond
Plumbing Baths (Full):   2
Baths (Half):   0
Extra Fixtures:   0
Total Plumbing Fixtures:   6 
Bedrooms 3
Main Body (SQFT) 1092
Year Built 1950
Additions 3
Effective Year 1950
Remodeled 0
Interior Adj.
Other Features
Building Total & Improvement Details

Grade C- 95%
Percentage Complete 100
Total Adjusted Replacement Cost New $205,668
Physical Depreciation (% Bad) 0%
Depreciated Value $113,117
Economic Depreciation (% Bad) 0%
Functional Depreciation (% Bad) 0%
Total Depreciated Value $113,117
Market Area Factor 1.00
Building Value $113,117
Misc Improvements Value
Total Improvement Value $113,117

Assessed Land Value $120,400
   
Assessed Total Value $233,517



Addition Summary 
StoryTypeCodeArea
1.00 Terrace/Raised Patio 16T 12
1.00 Covered Porch 18 84
1.00 Unfinished Basement 10 392
 
Other Improvements 
 


Building Sketch
Photograph
Building Sketch Building Photo
(Click sketch for bigger image)




Copyright © 2022 Durham County, North Carolina.