Building Summary

Data last updated on: 4/2/2026     Ownership current as of: 3/30/2026     Tax Year: 2026
REID 118340

PIN # 0821-81-6543

Location Address Property Description
123 DUNSTAN AVE MERRICK MCDOUGALD SPAULDI NG/LT#05 PT PL:000022-000094
   
Property Owner Owner's Mailing Address
DOMEIER, ALEXA;HIPPS, BRENDAN EDWARD
123 DUNSTAN AVE
DURHAM NC 27707
Parcel
Buildings
Misc Improvements
Land
Deeds
Notes
Sales
Photos
Map
Building Location Address
123 DUNSTAN AVE
Building Description
RESFR-RES-FRM-OR-EQ
Card   of  1
Bldg Type RESIDENTIAL
Units 1
Living Area (SQFT) 1561
Number of Stories 2.00
Style CON-CONVENTIONAL
Foundation 04-P-FOOTING/CRWL-SP
Exterior 09-HARD-B/CEMENTBRD
Const Type
Heating 05-PACKAGE-HEAT/COOL
Air Cond
Plumbing Baths (Full):   2
Baths (Half):   1
Extra Fixtures:   0
Total Plumbing Fixtures:   8 
Bedrooms 3
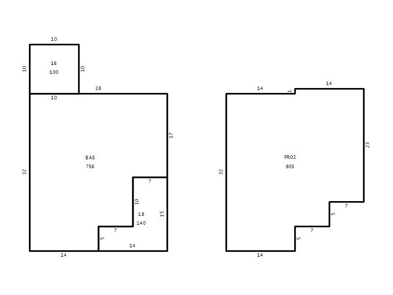
Main Body (SQFT) 756
Year Built 2019
Additions 3
Effective Year 2019
Remodeled 0
Interior Adj.
Other Features
Building Total & Improvement Details

Grade B-5 115%
Percentage Complete 100
Total Adjusted Replacement Cost New $321,396
Physical Depreciation (% Bad) 0%
Depreciated Value $318,182
Economic Depreciation (% Bad) 0%
Functional Depreciation (% Bad) 0%
Total Depreciated Value $318,182
Market Area Factor 1.00
Building Value $318,182
Misc Improvements Value
Total Improvement Value $318,182

Assessed Land Value $146,250
   
Assessed Total Value $464,432



Addition Summary 
StoryTypeCodeArea
1.00 Res Frame 2Nd Flr FR02 805
1.00 Frame Deck 16 100
1.00 Covered Porch 18 140
 
Other Improvements 
 


Building Sketch
Photograph
Building Sketch Building Photo
(Click sketch for bigger image)




Copyright © 2022 Durham County, North Carolina.