Building Summary

Data last updated on: 10/6/2025     Ownership current as of: 9/18/2025     Tax Year: 2025
REID 119073

PIN # 0831-31-0543

Location Address Property Description
432 LAKELAND ST PROP-CONNELLY W B PL:000026-000027
   
Property Owner Owner's Mailing Address
HOLMES, EMILY
432 LAKELAND ST
DURHAM NC 27701
Parcel
Buildings
Misc Improvements
Land
Deeds
Notes
Sales
Photos
Map
Building Location Address
432 LAKELAND ST
Building Description
RESFR-RES-FRM-OR-EQ
Card   of  1
Bldg Type RESIDENTIAL
Units 1
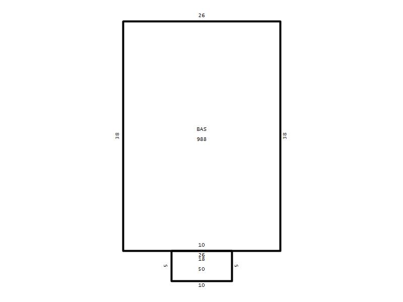
Living Area (SQFT) 988
Number of Stories 1.00
Style RAN-RANCH
Foundation 04-P-FOOTING/CRWL-SP
Exterior 09-HARD-B/CEMENTBRD
Const Type
Heating 01-FLR/WALL-FURNACE
Air Cond
Plumbing Baths (Full):   2
Baths (Half):   0
Extra Fixtures:   0
Total Plumbing Fixtures:   6 
Bedrooms 3
Main Body (SQFT) 988
Year Built 1930
Additions 1
Effective Year 1930
Remodeled 0
Interior Adj.
Other Features
Building Total & Improvement Details

Grade C-5 95%
Percentage Complete 100
Total Adjusted Replacement Cost New $179,693
Physical Depreciation (% Bad) 0%
Depreciated Value $170,708
Economic Depreciation (% Bad) 0%
Functional Depreciation (% Bad) 0%
Total Depreciated Value $170,708
Market Area Factor 1.00
Building Value $170,708
Misc Improvements Value
Total Improvement Value $170,708

Assessed Land Value $118,250
   
Assessed Total Value $288,958



Addition Summary 
StoryTypeCodeArea
1.00 Covered Porch 18 50
 
Other Improvements 
 


Building Sketch
Photograph
Building Sketch Building Photo
(Click sketch for bigger image)




Copyright © 2022 Durham County, North Carolina.