Building Summary

Data last updated on: 10/6/2025     Ownership current as of: 9/18/2025     Tax Year: 2025
REID 119144

PIN # 0831-21-6829

Location Address Property Description
424 POTTER ST PROP-MIMS ADA J PL:000026-000190
   
Property Owner Owner's Mailing Address
PROPERTIES OF THE TRIANGLE LLC
1418 SQUIRE RIDGE DR
FUQUAY VARINA NC 27526
Parcel
Buildings
Misc Improvements
Land
Deeds
Notes
Sales
Photos
Map
Building Location Address
424 POTTER ST
Building Description
RESFR-RES-FRM-OR-EQ
Card   of  1
Bldg Type RESIDENTIAL
Units 1
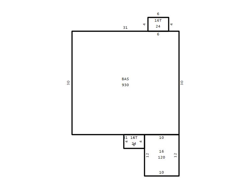
Living Area (SQFT) 930
Number of Stories 1.00
Style RAN-RANCH
Foundation 04-P-FOOTING/CRWL-SP
Exterior 08-VINYL/ALUMINUM
Const Type
Heating 04-UNIT-HEAT
Air Cond
Plumbing Baths (Full):   1
Baths (Half):   0
Extra Fixtures:   0
Total Plumbing Fixtures:   3 
Bedrooms 2
Main Body (SQFT) 930
Year Built 1959
Additions 3
Effective Year 1959
Remodeled 0
Interior Adj.
Other Features
Building Total & Improvement Details

Grade C 100%
Percentage Complete 100
Total Adjusted Replacement Cost New $180,759
Physical Depreciation (% Bad) 0%
Depreciated Value $72,304
Economic Depreciation (% Bad) 0%
Functional Depreciation (% Bad) 0%
Total Depreciated Value $72,304
Market Area Factor 1.00
Building Value $72,304
Misc Improvements Value
Total Improvement Value $72,304

Assessed Land Value $118,250
   
Assessed Total Value $190,554



Addition Summary 
StoryTypeCodeArea
1.00 Frame Deck 16 120
1.00 Terrace/Raised Patio 16T 24
1.00 Terrace/Raised Patio 16T 24
 
Other Improvements 
 


Building Sketch
Photograph
Building Sketch Building Photo
(Click sketch for bigger image)




Copyright © 2022 Durham County, North Carolina.