Building Summary

Data last updated on: 1/30/2026     Ownership current as of: 1/16/2026     Tax Year: 2026
REID 120021

PIN # 0832-27-7862

Location Address Property Description
304 HAMMOND ST PROP-HILL A J & D H EST/B LK:C/LT#06-07 E PT PL:000012-000015
   
Property Owner Owner's Mailing Address
SEVEN PINES LLC
921 E BROAD ST #1092
FUQUAY VARINA NC 27526
Parcel
Buildings
Misc Improvements
Land
Deeds
Notes
Sales
Photos
Map
Building Location Address
304 HAMMOND ST
Building Description
RESFR-RES-FRM-OR-EQ
Card   of  1
Bldg Type RESIDENTIAL
Units 1
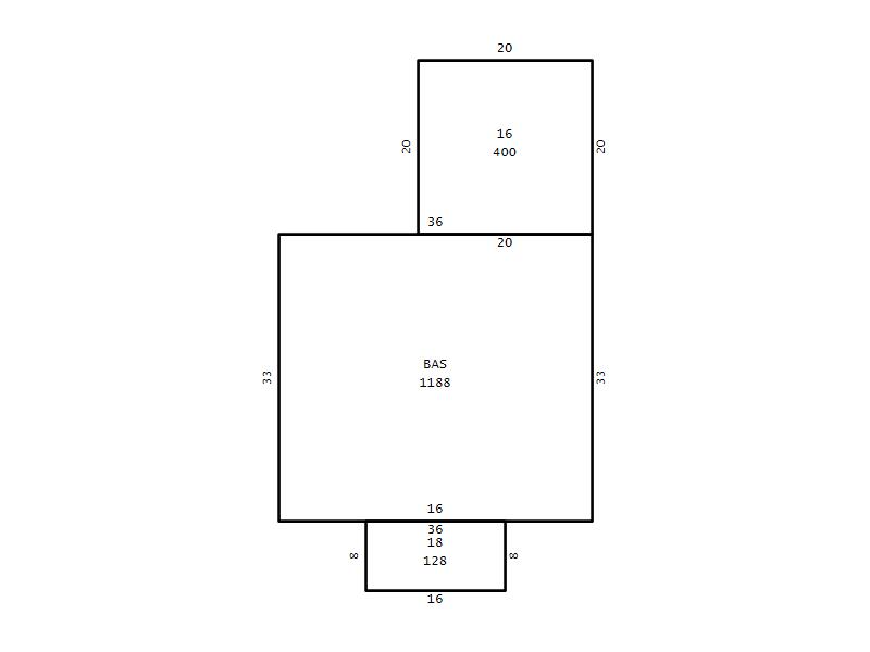
Living Area (SQFT) 1188
Number of Stories 1.00
Style RAN-RANCH
Foundation 04-P-FOOTING/CRWL-SP
Exterior 09-HARD-B/CEMENTBRD
Const Type
Heating 05-PACKAGE-HEAT/COOL
Air Cond
Plumbing Baths (Full):   1
Baths (Half):   0
Extra Fixtures:   0
Total Plumbing Fixtures:   3 
Bedrooms 2
Main Body (SQFT) 1188
Year Built 1947
Additions 2
Effective Year 1947
Remodeled 0
Interior Adj.
Other Features
Building Total & Improvement Details

Grade C 100%
Percentage Complete 100
Total Adjusted Replacement Cost New $238,365
Physical Depreciation (% Bad) 0%
Depreciated Value $131,101
Economic Depreciation (% Bad) 0%
Functional Depreciation (% Bad) 0%
Total Depreciated Value $131,101
Market Area Factor 1.15
Building Value $150,766
Misc Improvements Value $64
Total Improvement Value $150,830

Assessed Land Value $85,500
   
Assessed Total Value $236,330



Addition Summary 
StoryTypeCodeArea
1.00 Frame Deck 16 400
1.00 Covered Porch 18 128
 
Other Improvements 
UnitsDescriptionItemCodeYear% BadValue
6x6 DIMENSIONS Shed (Open Pole) 1947 75 64
 


Building Sketch
Photograph
Building Sketch Building Photo
(Click sketch for bigger image)




Copyright © 2022 Durham County, North Carolina.