Building Summary

Data last updated on: 1/13/2026     Ownership current as of: 12/23/2025     Tax Year: 2026
REID 120216

PIN # 0832-36-5946

Location Address Property Description
2509 CASCADILLA ST COLONIAL VILLAGE/LT#052 PL:000014-000094
   
Property Owner Owner's Mailing Address
SEKINGER, ALEKSANDRA KATHERINE
2509 CASCADILLA ST
DURHAM NC 27704
Parcel
Buildings
Misc Improvements
Land
Deeds
Notes
Sales
Photos
Map
Building Location Address
2509 CASCADILLA ST
Building Description
RESFR-RES-FRM-OR-EQ
Card   of  1
Bldg Type RESIDENTIAL
Units 1
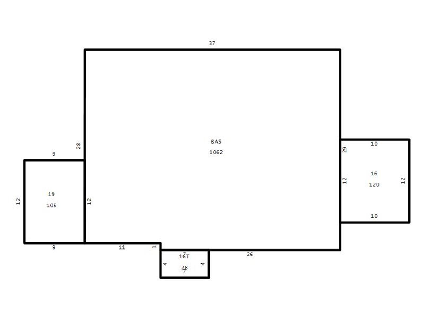
Living Area (SQFT) 1062
Number of Stories 1.00
Style RAN-RANCH
Foundation 04-P-FOOTING/CRWL-SP
Exterior 09-HARD-B/CEMENTBRD
Const Type
Heating 05-PACKAGE-HEAT/COOL
Air Cond
Plumbing Baths (Full):   1
Baths (Half):   0
Extra Fixtures:   0
Total Plumbing Fixtures:   3 
Bedrooms 3
Main Body (SQFT) 1062
Year Built 1943
Additions 4
Effective Year 1943
Remodeled 0
Interior Adj.
Other Features
Building Total & Improvement Details

Grade C+ 110%
Percentage Complete 100
Total Adjusted Replacement Cost New $253,563
Physical Depreciation (% Bad) 0%
Depreciated Value $240,885
Economic Depreciation (% Bad) 0%
Functional Depreciation (% Bad) 0%
Total Depreciated Value $240,885
Market Area Factor 1.15
Building Value $277,018
Misc Improvements Value
Total Improvement Value $277,018

Assessed Land Value $91,500
   
Assessed Total Value $368,518



Addition Summary 
StoryTypeCodeArea
1.00 Terrace/Raised Patio 16T 28
1.00 Screen Porch 19 105
1.00 Frame Deck 16 120
1.00 Attic Unfinished 08 245
 
Other Improvements 
 


Building Sketch
Photograph
Building Sketch Building Photo
(Click sketch for bigger image)




Copyright © 2022 Durham County, North Carolina.