Building Summary

Data last updated on: 4/1/2026     Ownership current as of: 3/27/2026     Tax Year: 2026
REID 120597

PIN # 0831-98-2642

Location Address Property Description
1209 LANDON ST WELLONS VLG/SEC:01/BLK:H/ LT#44 PL:000036-000019
   
Property Owner Owner's Mailing Address
PARK FINANCIALS LLC
421 CHAPANOKE RD, STE 113
RALEIGH NC 27603
Parcel
Buildings
Misc Improvements
Land
Deeds
Notes
Sales
Photos
Map
Building Location Address
1209 LANDON ST
Building Description
RESMS-RES-MS-OR-EQ
Card   of  1
Bldg Type RESIDENTIAL
Units 1
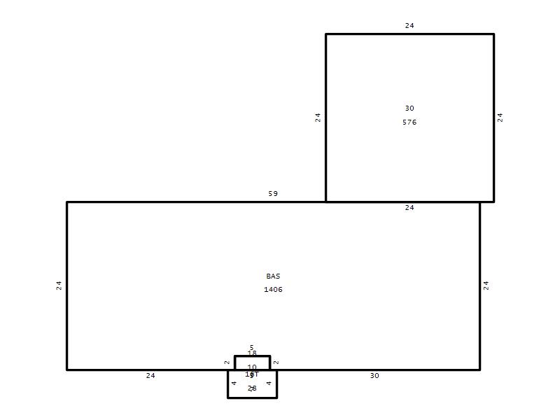
Living Area (SQFT) 1406
Number of Stories 1.00
Style RAN-RANCH
Foundation 04-P-FOOTING/CRWL-SP
Exterior 02-BRICK
Const Type
Heating 05-PACKAGE-HEAT/COOL
Air Cond
Plumbing Baths (Full):   1
Baths (Half):   1
Extra Fixtures:   0
Total Plumbing Fixtures:   5 
Bedrooms 3
Main Body (SQFT) 1406
Year Built 1961
Additions 3
Effective Year 1961
Remodeled 0
Interior Adj.
Other Features
Building Total & Improvement Details

Grade C+15 115%
Percentage Complete 100
Total Adjusted Replacement Cost New $321,913
Physical Depreciation (% Bad) 0%
Depreciated Value $177,052
Economic Depreciation (% Bad) 0%
Functional Depreciation (% Bad) 0%
Total Depreciated Value $177,052
Market Area Factor 1.00
Building Value $177,052
Misc Improvements Value
Total Improvement Value $177,052

Assessed Land Value $96,000
   
Assessed Total Value $273,052



Addition Summary 
StoryTypeCodeArea
1.00 Terrace/Raised Patio 16T 28
1.00 Covered Porch 18 10
1.00 Carport 30 576
 
Other Improvements 
 


Building Sketch
Photograph
Building Sketch Building Photo
(Click sketch for bigger image)




Copyright © 2022 Durham County, North Carolina.