Building Summary

Data last updated on: 4/1/2026     Ownership current as of: 3/27/2026     Tax Year: 2026
REID 120763

PIN # 0831-97-5754

Location Address Property Description
1142 DELANO ST HILLCREST ADN/SEC:02/BLK: B/LT#37 PL:00031A-000022
   
Property Owner Owner's Mailing Address
MORA, SANDRA L CAMACHO
1515 BLAZE CIR
CREEDMOOR NC 27522
Parcel
Buildings
Misc Improvements
Land
Deeds
Notes
Sales
Photos
Map
Building Location Address
1142 DELANO ST
Building Description
RESMS-RES-MS-OR-EQ
Card   of  1
Bldg Type RESIDENTIAL
Units 1
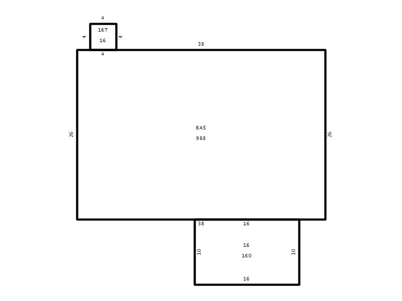
Living Area (SQFT) 988
Number of Stories 1.00
Style RAN-RANCH
Foundation 04-P-FOOTING/CRWL-SP
Exterior 02-BRICK
Const Type
Heating 05-PACKAGE-HEAT/COOL
Air Cond
Plumbing Baths (Full):   1
Baths (Half):   0
Extra Fixtures:   0
Total Plumbing Fixtures:   3 
Bedrooms 3
Main Body (SQFT) 988
Year Built 1956
Additions 2
Effective Year 1956
Remodeled 0
Interior Adj.
Other Features
Building Total & Improvement Details

Grade C+15 115%
Percentage Complete 100
Total Adjusted Replacement Cost New $233,621
Physical Depreciation (% Bad) 0%
Depreciated Value $128,492
Economic Depreciation (% Bad) 0%
Functional Depreciation (% Bad) 0%
Total Depreciated Value $128,492
Market Area Factor 1.00
Building Value $128,492
Misc Improvements Value
Total Improvement Value $128,492

Assessed Land Value $94,500
   
Assessed Total Value $222,992



Addition Summary 
StoryTypeCodeArea
1.00 Frame Deck 16 160
1.00 Terrace/Raised Patio 16T 16
 
Other Improvements 
UnitsDescriptionItemCodeYear% BadValue
8x10 DIMENSIONS Shed Personal Property 1956 75
 


Building Sketch
Photograph
Building Sketch Building Photo
(Click sketch for bigger image)




Copyright © 2022 Durham County, North Carolina.