Building Summary

Data last updated on: 4/1/2026     Ownership current as of: 3/27/2026     Tax Year: 2026
REID 120787

PIN # 0831-97-1364

Location Address Property Description
1121 RAYNOR ST HILLCREST ADN/SEC:02/BLK: B/LT#21 REVISED PL:00028A-000015
   
Property Owner Owner's Mailing Address
LAURIDSEN, ALMALIIS
1121 RAYNOR ST
DURHAM NC 27703
Parcel
Buildings
Misc Improvements
Land
Deeds
Notes
Sales
Photos
Map
Building Location Address
1121 RAYNOR ST
Building Description
RESFR-RES-FRM-OR-EQ
Card   of  1
Bldg Type RESIDENTIAL
Units 1
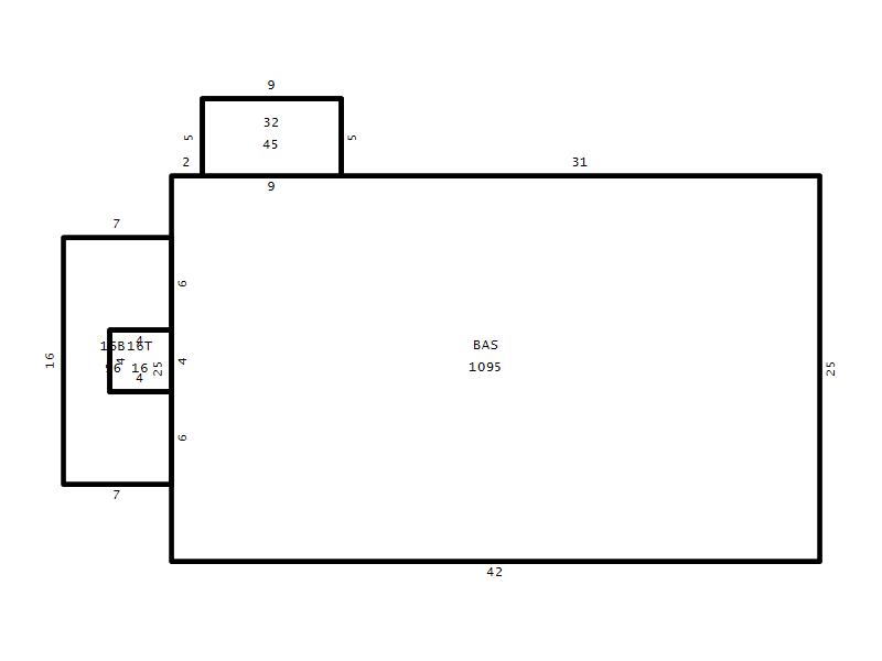
Living Area (SQFT) 1095
Number of Stories 1.00
Style RAN-RANCH
Foundation 04-P-FOOTING/CRWL-SP
Exterior 01-WOOD-PANEL
Const Type
Heating 06-HEAT-PUMP
Air Cond
Plumbing Baths (Full):   1
Baths (Half):   0
Extra Fixtures:   0
Total Plumbing Fixtures:   3 
Bedrooms 3
Main Body (SQFT) 1095
Year Built 1954
Additions 3
Effective Year 1954
Remodeled 0
Interior Adj.
Other Features
Building Total & Improvement Details

Grade C+20 120%
Percentage Complete 100
Total Adjusted Replacement Cost New $244,425
Physical Depreciation (% Bad) 0%
Depreciated Value $183,319
Economic Depreciation (% Bad) 0%
Functional Depreciation (% Bad) 0%
Total Depreciated Value $183,319
Market Area Factor 1.00
Building Value $183,319
Misc Improvements Value
Total Improvement Value $183,319

Assessed Land Value $91,500
   
Assessed Total Value $274,819



Addition Summary 
StoryTypeCodeArea
1.00 Concrete Slab 16B 96
1.00 Terrace/Raised Patio 16T 16
1.00 Storage Utility 32 45
 
Other Improvements 
 


Building Sketch
Photograph
Building Sketch Building Photo
(Click sketch for bigger image)




Copyright © 2022 Durham County, North Carolina.