Building Summary

Data last updated on: 3/31/2026     Ownership current as of: 3/26/2026     Tax Year: 2026
REID 120812

PIN # 0831-98-4184

Location Address Property Description
1140 FISKE ST HILLCREST ADN/SEC:03/BLK: A/LT#31 PL:00031B-000072
   
Property Owner Owner's Mailing Address
TBR, SFR RALEIGH OWNER 1 L P
PO BOX 4900`
SCOTTSDALE AZ 85261
Parcel
Buildings
Misc Improvements
Land
Deeds
Notes
Sales
Photos
Map
Building Location Address
1140 FISKE ST
Building Description
RESMS-RES-MS-OR-EQ
Card   of  1
Bldg Type RESIDENTIAL
Units 1
Living Area (SQFT) 1590
Number of Stories 1.00
Style RAN-RANCH
Foundation 04-P-FOOTING/CRWL-SP
Exterior 02-BRICK
Const Type
Heating 05-PACKAGE-HEAT/COOL
Air Cond
Plumbing Baths (Full):   1
Baths (Half):   0
Extra Fixtures:   0
Total Plumbing Fixtures:   3 
Bedrooms 3
Main Body (SQFT) 1590
Year Built 1957
Additions 6
Effective Year 1957
Remodeled 0
Interior Adj.
Other Features
Building Total & Improvement Details

Grade C+15 115%
Percentage Complete 100
Total Adjusted Replacement Cost New $353,556
Physical Depreciation (% Bad) 0%
Depreciated Value $265,167
Economic Depreciation (% Bad) 0%
Functional Depreciation (% Bad) 0%
Total Depreciated Value $265,167
Market Area Factor 1.00
Building Value $265,167
Misc Improvements Value
Total Improvement Value $265,167

Assessed Land Value $96,000
   
Assessed Total Value $361,167



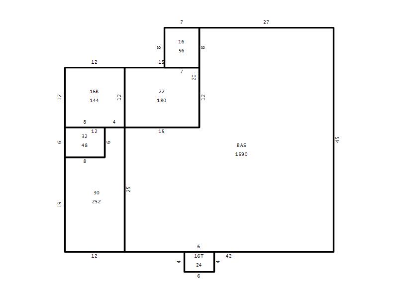
Addition Summary 
StoryTypeCodeArea
1.00 Frame Deck 16 56
1.00 Concrete Slab 16B 144
1.00 Terrace/Raised Patio 16T 24
1.00 Enclosed Porch 22 180
1.00 Carport 30 252
1.00 Storage Utility 32 48
 
Other Improvements 
 


Building Sketch
Photograph
Building Sketch Building Photo
(Click sketch for bigger image)




Copyright © 2022 Durham County, North Carolina.