Building Summary

Data last updated on: 5/22/2026     Ownership current as of: 5/15/2026     Tax Year: 2026
REID 121076

PIN # 0831-82-8886

Location Address Property Description
301 S BENJAMINE ST PROP-MARKHAM ESTATE/LT#A LT#B 4FT PL:000023-000067
   
Property Owner Owner's Mailing Address
CONYERS, CHARLIE LEE;TAYLOR, CLARA PEARL
301 S BENJAMINE ST
DURHAM NC 27703
Parcel
Buildings
Misc Improvements
Land
Deeds
Notes
Sales
Photos
Map
Building Location Address
301 S BENJAMINE ST
Card   of  1
Building Details

Building Type RESIDENTIAL
Building Use RESFR-RES-FRM-OR-EQ
Units 1
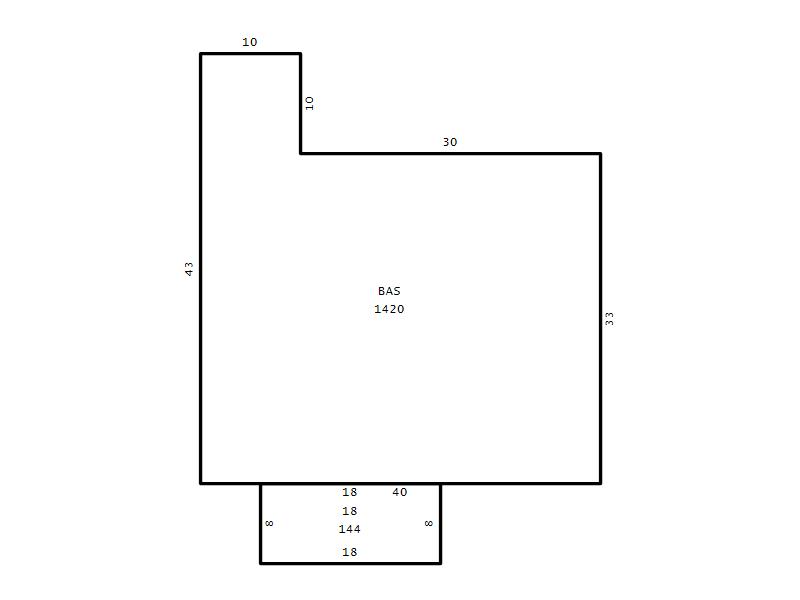
Living Area (SQFT) 1420
Number of Stories 1.00
Style RAN-RANCH
Foundation 04-P-FOOTING/CRWL-SP
Exterior 01-WOOD-PANEL
Const Type
Heating 05-PACKAGE-HEAT/COOL
Air Cond
Plumbing Baths (Full):   1
Baths (Half):   0
Extra Fixtures:   0
Total Plumbing Fixtures:   3 
Bedrooms 3
Main Body (SQFT) 1420
Building Description

Year Built 1940
Additions 2
Effective Year 1940
Remodeled 0
Interior Adj.
Other Features
Building Total & Improvement Details

Grade C 100%
Percentage Complete 100
Total Adjusted Replacement Cost New $286,155
Physical Depreciation (% Bad) 0%
Depreciated Value $186,001
Economic Depreciation (% Bad) 0%
Functional Depreciation (% Bad) 0%
Total Depreciated Value $186,001
Market Area Factor 1.00
Building Value $186,001
Misc Improvements Value $204
Total Improvement Value $186,205

Assessed Land Value $137,500
   
Assessed Total Value $323,705



Addition Summary 
StoryTypeCodeArea
1.00 Covered Porch 18 144
1.00 Unfinished Basement 10 1100
 
Other Improvements 
UnitsDescriptionItemCodeYear% BadValue
10x12 DIMENSIONS Shed (Open Pole) 1941 75 204
 


Building Sketch
Photograph
Building Sketch Building Photo
(Click sketch for bigger image)




Copyright © 2022 Durham County, North Carolina.