Building Summary

Data last updated on: 4/29/2026     Ownership current as of: 4/24/2026     Tax Year: 2026
REID 122358

PIN # 0820-24-6553

Location Address Property Description
2907 S ROXBORO ST LINCOLN HEIGHTS/DARK W E/ BLK:E/LT#31 PL:000014-000098
   
Property Owner Owner's Mailing Address
VALLECILLO, ZAIRA Y RODRIGUEZ;MURILLO, ROGER LEONARDO RIVERA
2907 S ROXBORO ST
DURHAM NC 27707
Parcel
Buildings
Misc Improvements
Land
Deeds
Notes
Sales
Photos
Map
Building Location Address
2907 S ROXBORO ST
Building Description
RESFR-RES-FRM-OR-EQ
Card   of  1
Bldg Type RESIDENTIAL
Units 1
Living Area (SQFT) 1344
Number of Stories 2.00
Style COL-COLONIAL
Foundation 04-P-FOOTING/CRWL-SP
Exterior 08-VINYL/ALUMINUM
Const Type
Heating 05-PACKAGE-HEAT/COOL
Air Cond
Plumbing Baths (Full):   2
Baths (Half):   1
Extra Fixtures:   0
Total Plumbing Fixtures:   8 
Bedrooms 3
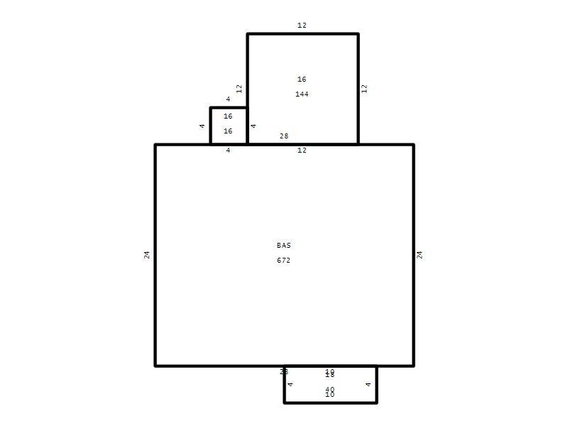
Main Body (SQFT) 672
Year Built 2006
Additions 4
Effective Year 2006
Remodeled 0
Interior Adj.
Other Features
Building Total & Improvement Details

Grade C- 95%
Percentage Complete 100
Total Adjusted Replacement Cost New $235,019
Physical Depreciation (% Bad) 0%
Depreciated Value $190,365
Economic Depreciation (% Bad) 0%
Functional Depreciation (% Bad) 0%
Total Depreciated Value $190,365
Market Area Factor 1.00
Building Value $190,365
Misc Improvements Value
Total Improvement Value $190,365

Assessed Land Value $83,025
   
Assessed Total Value $273,390



Addition Summary 
StoryTypeCodeArea
1.00 Frame Deck 16 16
1.00 Covered Porch 18 40
1.00 Frame Deck 16 144
1.00 Res Frame 2Nd Flr FR02 672
 
Other Improvements 
 


Building Sketch
Photograph
Building Sketch Building Photo
(Click sketch for bigger image)




Copyright © 2022 Durham County, North Carolina.