Building Summary

Data last updated on: 4/2/2026     Ownership current as of: 3/30/2026     Tax Year: 2026
REID 122361

PIN # 0820-34-0727

Location Address Property Description
2901 WADSWORTH AVE LINCOLN HEIGHTS/DARK W E/ LT#05/LT#06 N PT PL:000024-000006
   
Property Owner Owner's Mailing Address
LAMCO ASSET COMPANY 1 LLC
3903 S CONGRESS AVE STE 40298
AUSTIN TX 78704
Parcel
Buildings
Misc Improvements
Land
Deeds
Notes
Sales
Photos
Map
Building Location Address
2901 WADSWORTH AVE
Building Description
RESFR-RES-FRM-OR-EQ
Card   of  1
Bldg Type RESIDENTIAL
Units 1
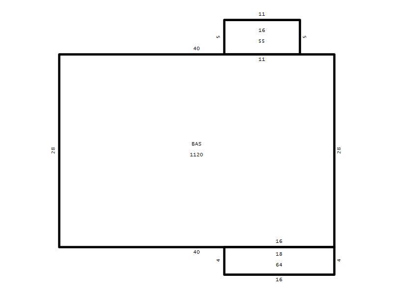
Living Area (SQFT) 1120
Number of Stories 1.00
Style RAN-RANCH
Foundation 04-P-FOOTING/CRWL-SP
Exterior 08-VINYL/ALUMINUM
Const Type
Heating 06-HEAT-PUMP
Air Cond
Plumbing Baths (Full):   2
Baths (Half):   0
Extra Fixtures:   0
Total Plumbing Fixtures:   6 
Bedrooms 3
Main Body (SQFT) 1120
Year Built 2000
Additions 2
Effective Year 2000
Remodeled 0
Interior Adj.
Other Features
Building Total & Improvement Details

Grade C- 95%
Percentage Complete 100
Total Adjusted Replacement Cost New $202,608
Physical Depreciation (% Bad) 0%
Depreciated Value $156,008
Economic Depreciation (% Bad) 0%
Functional Depreciation (% Bad) 0%
Total Depreciated Value $156,008
Market Area Factor 1.00
Building Value $156,008
Misc Improvements Value
Total Improvement Value $156,008

Assessed Land Value $85,725
   
Assessed Total Value $241,733



Addition Summary 
StoryTypeCodeArea
1.00 Frame Deck 16 55
1.00 Covered Porch 18 64
 
Other Improvements 
 


Building Sketch
Photograph
Building Sketch Building Photo
(Click sketch for bigger image)




Copyright © 2022 Durham County, North Carolina.