Building Summary

Data last updated on: 1/28/2026     Ownership current as of: 1/14/2026     Tax Year: 2026
REID 123542

PIN # 0810-95-7472

Location Address Property Description
3204 HOPE VALLEY RD UNIV ESTATES/UNIV TER EXT /LT#78 PL:000009-000090
   
Property Owner Owner's Mailing Address
RANDBY, NATHAN MARTIN;RANDBY, KENNETH EDWARD;RANDBY, LARA JP
3204 HOPE VALLEY RD
DURHAM NC 27707
Parcel
Buildings
Misc Improvements
Land
Deeds
Notes
Sales
Photos
Map
Building Location Address
3204 HOPE VALLEY RD
Building Description
RESFR-RES-FRM-OR-EQ
Card   of  1
Bldg Type RESIDENTIAL
Units 1
Living Area (SQFT) 984
Number of Stories 1.00
Style RAN-RANCH
Foundation 06-BASEMENT
Exterior 09-HARD-B/CEMENTBRD
Const Type
Heating 05-PACKAGE-HEAT/COOL
Air Cond
Plumbing Baths (Full):   1
Baths (Half):   0
Extra Fixtures:   0
Total Plumbing Fixtures:   3 
Bedrooms 1
Main Body (SQFT) 984
Year Built 1940
Additions 6
Effective Year 1940
Remodeled 0
Interior Adj.
Other Features
Building Total & Improvement Details

Grade C- 95%
Percentage Complete 100
Total Adjusted Replacement Cost New $233,639
Physical Depreciation (% Bad) 0%
Depreciated Value $128,501
Economic Depreciation (% Bad) 0%
Functional Depreciation (% Bad) 0%
Total Depreciated Value $128,501
Market Area Factor 1.00
Building Value $128,501
Misc Improvements Value
Total Improvement Value $128,501

Assessed Land Value $169,125
   
Assessed Total Value $297,626



Addition Summary 
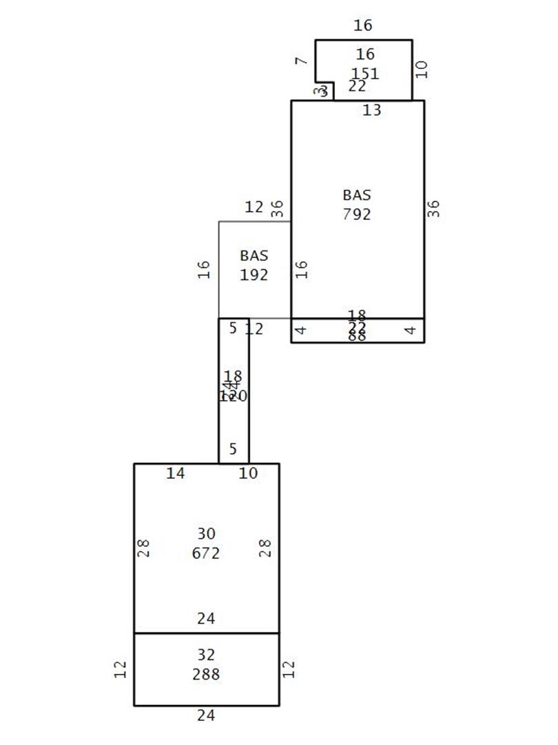
StoryTypeCodeArea
1.00 Storage Utility 32 288
1.00 Covered Porch 18 120
1.00 Carport 30 672
1.00 Covered Porch 18 88
1.00 Frame Deck 16 151
1.00 Unfinished Basement 10 264
 
Other Improvements 
 


Building Sketch
Photograph
Building Sketch Building Photo
(Click sketch for bigger image)




Copyright © 2022 Durham County, North Carolina.