Building Summary

Data last updated on: 1/28/2026     Ownership current as of: 1/14/2026     Tax Year: 2026
REID 123556

PIN # 0810-95-6405

Location Address Property Description
3219 OXFORD DR UNIV ESTATES/UNIV TER EXT /BLK:D/LT#55-56 PL:000012-000018
   
Property Owner Owner's Mailing Address
STEVENS, ALEXANDER F;OLIVER, MARGARET A
3219 OXFORD DR
DURHAM NC 27707
Parcel
Buildings
Misc Improvements
Land
Deeds
Notes
Sales
Photos
Map
Building Location Address
3219 OXFORD DR
Building Description
RESMS-RES-MS-OR-EQ
Card   of  1
Bldg Type RESIDENTIAL
Units 1
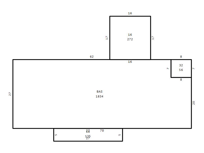
Living Area (SQFT) 1834
Number of Stories 1.00
Style RAN-RANCH
Foundation 04-P-FOOTING/CRWL-SP
Exterior 02-BRICK
Const Type
Heating 05-PACKAGE-HEAT/COOL
Air Cond
Plumbing Baths (Full):   2
Baths (Half):   0
Extra Fixtures:   0
Total Plumbing Fixtures:   6 
Bedrooms 3
Main Body (SQFT) 1834
Year Built 1962
Additions 3
Effective Year 1962
Remodeled 0
Interior Adj.
Other Features
Building Total & Improvement Details

Grade B+ 135%
Percentage Complete 100
Total Adjusted Replacement Cost New $449,327
Physical Depreciation (% Bad) 0%
Depreciated Value $426,861
Economic Depreciation (% Bad) 0%
Functional Depreciation (% Bad) 0%
Total Depreciated Value $426,861
Market Area Factor 1.00
Building Value $426,861
Misc Improvements Value $48,071
Total Improvement Value $474,932

Assessed Land Value $184,250
   
Assessed Total Value $659,182



Addition Summary 
StoryTypeCodeArea
1.00 Frame Deck 16 272
1.00 Covered Porch 18 135
1.00 Storage Utility 32 56
 
Other Improvements 
UnitsDescriptionItemCodeYear% BadValue
12x16 DIMENSIONS Shed (Open Pole) 1980 75 576
8x16 DIMENSIONS Lean To 1980 75 187
10x16 DIMENSIONS Studio/Auxillary Structure 2021 10 42768
8x16 DIMENSIONS Deck 2021 10 4540
 


Building Sketch
Photograph
Building Sketch Building Photo
(Click sketch for bigger image)




Copyright © 2022 Durham County, North Carolina.