Building Summary

Data last updated on: 1/28/2026     Ownership current as of: 1/14/2026     Tax Year: 2026
REID 123557

PIN # 0810-95-5395

Location Address Property Description
3221 OXFORD DR UNIV ESTATES/UNIV TER EXT /BLK:D/LT#53-54 PL:000012-000018
   
Property Owner Owner's Mailing Address
HAMRICK, MOLLY MIDYETTE
3221 OXFORD DR
DURHAM NC 27707

Value subject to change, property assessment under review

Parcel
Buildings
Misc Improvements
Land
Deeds
Notes
Sales
Photos
Map
Building Location Address
3221 OXFORD DR
Building Description
RESFR-RES-FRM-OR-EQ
Card   of  1
Bldg Type RESIDENTIAL
Units 1
Living Area (SQFT) 1316
Number of Stories 1.00
Style CNT-CONTEMPORARY
Foundation 04-P-FOOTING/CRWL-SP
Exterior 09-HARD-B/CEMENTBRD
Const Type
Heating 05-PACKAGE-HEAT/COOL
Air Cond
Plumbing Baths (Full):   2
Baths (Half):   0
Extra Fixtures:   0
Total Plumbing Fixtures:   6 
Bedrooms 3
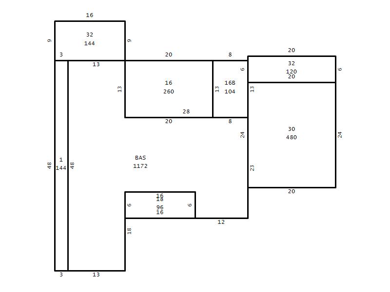
Main Body (SQFT) 1172
Year Built 1979
Additions 7
Effective Year 1979
Remodeled 0
Interior Adj.
Other Features
Building Total & Improvement Details

Grade C+20 120%
Percentage Complete 100
Total Adjusted Replacement Cost New
Physical Depreciation (% Bad) 0%
Depreciated Value
Economic Depreciation (% Bad) 0%
Functional Depreciation (% Bad) 0%
Total Depreciated Value
Market Area Factor 1.00
Building Value
Misc Improvements Value
Total Improvement Value

Assessed Land Value
   
Assessed Total Value



Addition Summary 
StoryTypeCodeArea
1.00 Overhang 01 144
1.00 Frame Deck 16 260
1.00 Concrete Slab 16B 104
1.00 Covered Porch 18 96
1.00 Carport 30 480
1.00 Storage Utility 32 144
1.00 Storage Utility 32 120
 
Other Improvements 
 


Building Sketch
Photograph
Building Sketch Building Photo
(Click sketch for bigger image)




Copyright © 2022 Durham County, North Carolina.