Building Summary

Data last updated on: 1/28/2026     Ownership current as of: 1/14/2026     Tax Year: 2026
REID 123562

PIN # 0810-95-4628

Location Address Property Description
3210 OXFORD DR UNIV ESTATES/UNIV TER EXT /BLK:H/LT#07 PL:000012-000018
   
Property Owner Owner's Mailing Address
MORTON, SARAH ASHLEY;GONGAWARE, MAXWELL KOHL
3210 OXFORD DR
DURHAM NC 27707
Parcel
Buildings
Misc Improvements
Land
Deeds
Notes
Sales
Photos
Map
Building Location Address
3210 OXFORD DR
Building Description
RESFR-RES-FRM-OR-EQ
Card   of  1
Bldg Type RESIDENTIAL
Units 1
Living Area (SQFT) 1709
Number of Stories 2.00
Style COL-COLONIAL
Foundation 04-P-FOOTING/CRWL-SP
Exterior 09-HARD-B/CEMENTBRD
Const Type
Heating 06-HEAT-PUMP
Air Cond
Plumbing Baths (Full):   1
Baths (Half):   1
Extra Fixtures:   0
Total Plumbing Fixtures:   5 
Bedrooms 3
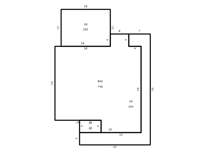
Main Body (SQFT) 748
Year Built 1985
Additions 5
Effective Year 1985
Remodeled 0
Interior Adj.
Other Features
Building Total & Improvement Details

Grade C+20 120%
Percentage Complete 100
Total Adjusted Replacement Cost New $338,933
Physical Depreciation (% Bad) 0%
Depreciated Value $291,482
Economic Depreciation (% Bad) 0%
Functional Depreciation (% Bad) 0%
Total Depreciated Value $291,482
Market Area Factor 1.00
Building Value $291,482
Misc Improvements Value
Total Improvement Value $291,482

Assessed Land Value $160,875
   
Assessed Total Value $452,357



Addition Summary 
StoryTypeCodeArea
1.00 Frame Deck 16 192
1.00 Covered Porch 18 28
1.00 Frame Deck 16 204
1.00 Res Frame 2Nd Flr FR02 672
1.00 Finished Basement 14 289
 
Other Improvements 
 


Building Sketch
Photograph
Building Sketch Building Photo
(Click sketch for bigger image)




Copyright © 2022 Durham County, North Carolina.