Building Summary

Data last updated on: 1/28/2026     Ownership current as of: 1/14/2026     Tax Year: 2026
REID 123568

PIN # 0810-95-2993

Location Address Property Description
3203 STANFORD DR UNIV ESTATES/UNIV TER EXT /BLK:H/LT#16 PL:000012-000018
   
Property Owner Owner's Mailing Address
MIDTHUN, MICHAEL;PULSKAMP, EMILY CHRISTINE
3203 STANFORD DR
DURHAM NC 27707
Parcel
Buildings
Misc Improvements
Land
Deeds
Notes
Sales
Photos
Map
Building Location Address
3203 STANFORD DR
Building Description
RESFR-RES-FRM-OR-EQ
Card   of  1
Bldg Type RESIDENTIAL
Units 1
Living Area (SQFT) 1466
Number of Stories 1.50
Style CAP-CAPE-COD
Foundation 04-P-FOOTING/CRWL-SP
Exterior 09-HARD-B/CEMENTBRD
Const Type
Heating 05-PACKAGE-HEAT/COOL
Air Cond
Plumbing Baths (Full):   2
Baths (Half):   0
Extra Fixtures:   0
Total Plumbing Fixtures:   6 
Bedrooms 3
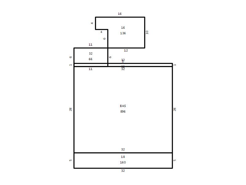
Main Body (SQFT) 896
Year Built 1983
Additions 5
Effective Year 1983
Remodeled 0
Interior Adj.
Other Features
Building Total & Improvement Details

Grade C 100%
Percentage Complete 100
Total Adjusted Replacement Cost New $273,662
Physical Depreciation (% Bad) 0%
Depreciated Value $210,720
Economic Depreciation (% Bad) 0%
Functional Depreciation (% Bad) 0%
Total Depreciated Value $210,720
Market Area Factor 1.00
Building Value $210,720
Misc Improvements Value
Total Improvement Value $210,720

Assessed Land Value $160,875
   
Assessed Total Value $371,595



Addition Summary 
StoryTypeCodeArea
1.00 Overhang 01 32
1.00 Frame Deck 16 136
1.00 Covered Porch 18 160
1.00 Storage Utility 32 66
1.00 Attic Finished 04 538
 
Other Improvements 
 


Building Sketch
Photograph
Building Sketch Building Photo
(Click sketch for bigger image)




Copyright © 2022 Durham County, North Carolina.