Building Summary

Data last updated on: 4/2/2026     Ownership current as of: 3/30/2026     Tax Year: 2026
REID 123873

PIN # 0820-03-1980

Location Address Property Description
514 HIGH RIDGE DR BRECKENRIDGE/SINGLE FAMIL Y/LT#09 PL:000121-000177
   
Property Owner Owner's Mailing Address
SAFARI TWO ASSET COMPANY LLC
3903 S CONGRESS AVE STE 40298
AUSTIN TX 78704
Parcel
Buildings
Misc Improvements
Land
Deeds
Notes
Sales
Photos
Map
Building Location Address
514 HIGH RIDGE DR
Building Description
RESFR-RES-FRM-OR-EQ
Card   of  1
Bldg Type RESIDENTIAL
Units 1
Living Area (SQFT) 1587
Number of Stories 2.00
Style CAP-CAPE-COD
Foundation 03-CONTINOUS-SLAB
Exterior 09-HARD-B/CEMENTBRD
Const Type
Heating 05-PACKAGE-HEAT/COOL
Air Cond
Plumbing Baths (Full):   2
Baths (Half):   1
Extra Fixtures:   0
Total Plumbing Fixtures:   8 
Bedrooms 3
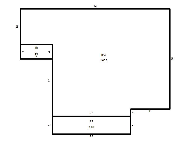
Main Body (SQFT) 1058
Year Built 1992
Additions 3
Effective Year 1992
Remodeled 0
Interior Adj.
Other Features
Building Total & Improvement Details

Grade C- 95%
Percentage Complete 100
Total Adjusted Replacement Cost New $258,399
Physical Depreciation (% Bad) 0%
Depreciated Value $188,631
Economic Depreciation (% Bad) 0%
Functional Depreciation (% Bad) 0%
Total Depreciated Value $188,631
Market Area Factor 1.00
Building Value $188,631
Misc Improvements Value
Total Improvement Value $188,631

Assessed Land Value $73,575
   
Assessed Total Value $262,206



Addition Summary 
StoryTypeCodeArea
1.00 Covered Porch 18 36
1.00 Covered Porch 18 110
1.00 Res Frame 2Nd Flr FR02 529
 
Other Improvements 
 


Building Sketch
Photograph
Building Sketch Building Photo
(Click sketch for bigger image)




Copyright © 2022 Durham County, North Carolina.