Building Summary

Data last updated on: 4/29/2026     Ownership current as of: 4/24/2026     Tax Year: 2026
REID 124042

PIN # 0820-13-2875

Location Address Property Description
218 ARCHDALE DR ARCHDALE/BLK:B/PT LT#10 & PT LT#11 NKA LT#02 PL:000151-000355
   
Property Owner Owner's Mailing Address
DAVIDSON, TREVOR;GRONEWOLD, KAYLA
218 ARCHDALE DR
DURHAM NC 27707
Parcel
Buildings
Misc Improvements
Land
Deeds
Notes
Sales
Photos
Map
Building Location Address
218 ARCHDALE DR
Building Description
RESFR-RES-FRM-OR-EQ
Card   of  1
Bldg Type RESIDENTIAL
Units 1
Living Area (SQFT) 1772
Number of Stories 2.00
Style CON-CONVENTIONAL
Foundation 03-CONTINOUS-SLAB
Exterior 09-HARD-B/CEMENTBRD
Const Type
Heating 05-PACKAGE-HEAT/COOL
Air Cond
Plumbing Baths (Full):   2
Baths (Half):   1
Extra Fixtures:   0
Total Plumbing Fixtures:   8 
Bedrooms 4
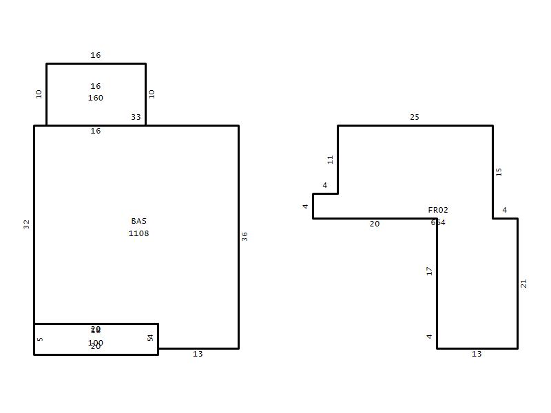
Main Body (SQFT) 1108
Year Built 2019
Additions 3
Effective Year 2019
Remodeled 0
Interior Adj.
Other Features
Building Total & Improvement Details

Grade B 120%
Percentage Complete 100
Total Adjusted Replacement Cost New $349,135
Physical Depreciation (% Bad) 0%
Depreciated Value $328,187
Economic Depreciation (% Bad) 0%
Functional Depreciation (% Bad) 0%
Total Depreciated Value $328,187
Market Area Factor 1.00
Building Value $328,187
Misc Improvements Value
Total Improvement Value $328,187

Assessed Land Value $101,925
   
Assessed Total Value $430,112



Addition Summary 
StoryTypeCodeArea
1.00 Res Frame 2Nd Flr FR02 664
1.00 Frame Deck 16 160
1.00 Covered Porch 18 100
 
Other Improvements 
 


Building Sketch
Photograph
Building Sketch Photo is unavailable for this parcel.
(Click sketch for bigger image)




Copyright © 2022 Durham County, North Carolina.