Building Summary

Data last updated on: 4/2/2026     Ownership current as of: 3/30/2026     Tax Year: 2026
REID 124186

PIN # 0820-42-1901

Location Address Property Description
2909 SPRUCEWOOD DR FOREST VIEW HEIGHTS/SEC:0 1/BLK:D/LT#26 PL:00031B-000100
   
Property Owner Owner's Mailing Address
SHORE, AMY C;FONTAINE, NICHOLAS C
2909 SPRUCEWOOD DR
DURHAM NC 27707
Parcel
Buildings
Misc Improvements
Land
Deeds
Notes
Sales
Photos
Map
Building Location Address
2909 SPRUCEWOOD DR
Building Description
RESFR-RES-FRM-OR-EQ
Card   of  1
Bldg Type RESIDENTIAL
Units 1
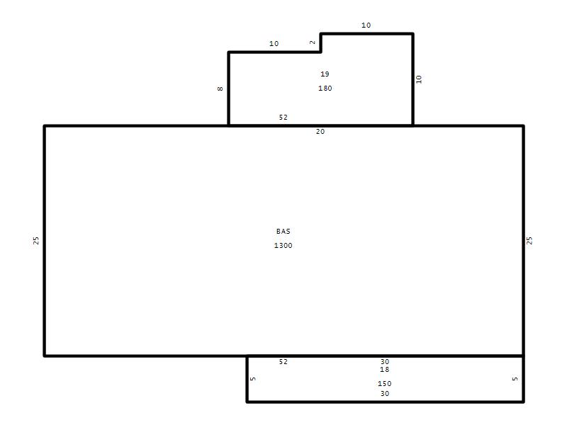
Living Area (SQFT) 1300
Number of Stories 1.00
Style RAN-RANCH
Foundation 04-P-FOOTING/CRWL-SP
Exterior 08-VINYL/ALUMINUM
Const Type
Heating 03-FORCED-HOT-AIR
Air Cond
Plumbing Baths (Full):   1
Baths (Half):   0
Extra Fixtures:   0
Total Plumbing Fixtures:   3 
Bedrooms 3
Main Body (SQFT) 1300
Year Built 1962
Additions 2
Effective Year 1962
Remodeled 0
Interior Adj.
Other Features
Building Total & Improvement Details

Grade C 100%
Percentage Complete 100
Total Adjusted Replacement Cost New $235,542
Physical Depreciation (% Bad) 0%
Depreciated Value $155,458
Economic Depreciation (% Bad) 0%
Functional Depreciation (% Bad) 0%
Total Depreciated Value $155,458
Market Area Factor 1.00
Building Value $155,458
Misc Improvements Value $272
Total Improvement Value $155,730

Assessed Land Value $178,750
   
Assessed Total Value $334,480



Addition Summary 
StoryTypeCodeArea
1.00 Covered Porch 18 150
1.00 Screen Porch 19 180
 
Other Improvements 
UnitsDescriptionItemCodeYear% BadValue
10x12 DIMENSIONS Shed (Open Pole) 2005 75 272
 


Building Sketch
Photograph
Building Sketch Building Photo
(Click sketch for bigger image)




Copyright © 2022 Durham County, North Carolina.