Building Summary

Data last updated on: 4/2/2026     Ownership current as of: 3/30/2026     Tax Year: 2026
REID 124213

PIN # 0820-42-0470

Location Address Property Description
2923 SPRUCEWOOD DR FOREST VIEW HEIGHTS/SEC:0 1/BLK:D/LT#19 PL:00031B-000100
   
Property Owner Owner's Mailing Address
HALSTENBERG, SIERRA
2923 SPRUCEWOOD DR
DURHAM NC 27707
Parcel
Buildings
Misc Improvements
Land
Deeds
Notes
Sales
Photos
Map
Building Location Address
2923 SPRUCEWOOD DR
Building Description
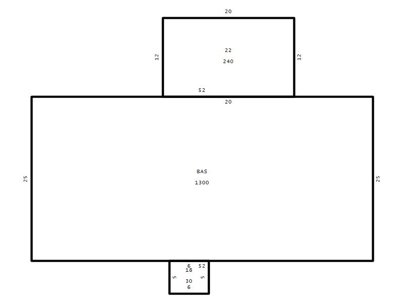
RESFR-RES-FRM-OR-EQ
Card   of  1
Bldg Type RESIDENTIAL
Units 1
Living Area (SQFT) 1300
Number of Stories 1.00
Style RAN-RANCH
Foundation 04-P-FOOTING/CRWL-SP
Exterior 09-HARD-B/CEMENTBRD
Const Type
Heating 05-PACKAGE-HEAT/COOL
Air Cond
Plumbing Baths (Full):   2
Baths (Half):   1
Extra Fixtures:   0
Total Plumbing Fixtures:   8 
Bedrooms 4
Main Body (SQFT) 1300
Year Built 1963
Additions 2
Effective Year 1963
Remodeled 0
Interior Adj.
Other Features
Building Total & Improvement Details

Grade C 100%
Percentage Complete 100
Total Adjusted Replacement Cost New $256,284
Physical Depreciation (% Bad) 0%
Depreciated Value $197,339
Economic Depreciation (% Bad) 0%
Functional Depreciation (% Bad) 0%
Total Depreciated Value $197,339
Market Area Factor 1.00
Building Value $197,339
Misc Improvements Value $272
Total Improvement Value $197,611

Assessed Land Value $171,875
   
Assessed Total Value $369,486



Addition Summary 
StoryTypeCodeArea
1.00 Covered Porch 18 30
1.00 Enclosed Porch 22 240
 
Other Improvements 
UnitsDescriptionItemCodeYear% BadValue
10x12 DIMENSIONS Shed (Open Pole) 1985 75 272
 


Building Sketch
Photograph
Building Sketch Building Photo
(Click sketch for bigger image)




Copyright © 2022 Durham County, North Carolina.