Building Summary

Data last updated on: 4/2/2026     Ownership current as of: 3/30/2026     Tax Year: 2026
REID 125024

PIN # 0822-18-0909

Location Address Property Description
2322 STROLLER AVE PROP-GRAHAM JOSEPH DR/LT# 10 PL:00003A-000043
   
Property Owner Owner's Mailing Address
DESOUZA, SCOTT;KENNEDY, ELIZABETH
2322 STROLLER AVE
DURHAM NC 27705
Parcel
Buildings
Misc Improvements
Land
Deeds
Notes
Sales
Photos
Map
Building Location Address
2322 STROLLER AVE
Building Description
RESFR-RES-FRM-OR-EQ
Card   of  1
Bldg Type RESIDENTIAL
Units 1
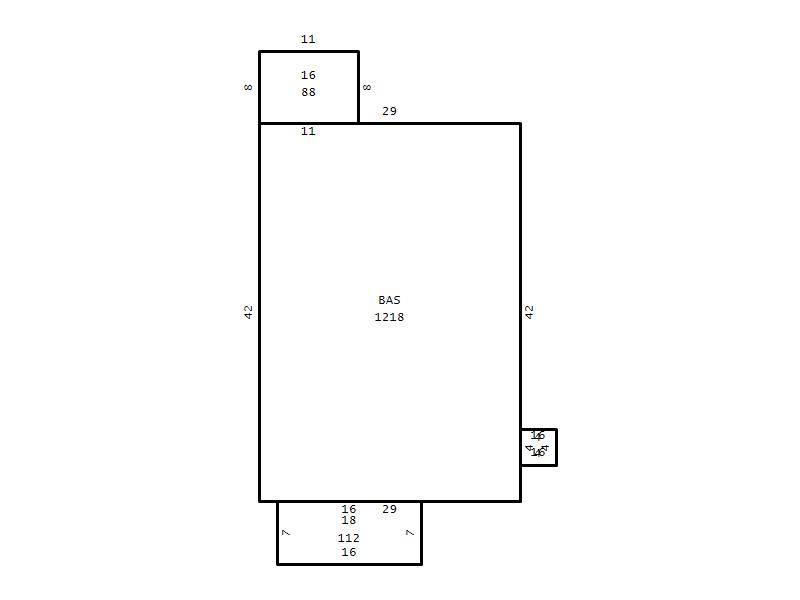
Living Area (SQFT) 1218
Number of Stories 1.00
Style RAN-RANCH
Foundation 04-P-FOOTING/CRWL-SP
Exterior 09-HARD-B/CEMENTBRD
Const Type
Heating 05-PACKAGE-HEAT/COOL
Air Cond
Plumbing Baths (Full):   2
Baths (Half):   0
Extra Fixtures:   0
Total Plumbing Fixtures:   6 
Bedrooms 3
Main Body (SQFT) 1218
Year Built 1986
Additions 3
Effective Year 1986
Remodeled 0
Interior Adj.
Other Features
Building Total & Improvement Details

Grade C+ 110%
Percentage Complete 100
Total Adjusted Replacement Cost New $254,685
Physical Depreciation (% Bad) 0%
Depreciated Value $198,654
Economic Depreciation (% Bad) 0%
Functional Depreciation (% Bad) 0%
Total Depreciated Value $198,654
Market Area Factor 1.00
Building Value $198,654
Misc Improvements Value $238
Total Improvement Value $198,892

Assessed Land Value $160,875
   
Assessed Total Value $359,767



Addition Summary 
StoryTypeCodeArea
1.00 Frame Deck 16 88
1.00 Covered Porch 18 112
1.00 Frame Deck 16 16
 
Other Improvements 
UnitsDescriptionItemCodeYear% BadValue
80 SIZE Shed (Open Pole) 2010 75 185
48 SIZE Lean To 2010 75 53
 


Building Sketch
Photograph
Building Sketch Building Photo
(Click sketch for bigger image)




Copyright © 2022 Durham County, North Carolina.