Building Summary

Data last updated on: 4/2/2026     Ownership current as of: 3/30/2026     Tax Year: 2026
REID 125178

PIN # 0822-28-4370

Location Address Property Description
2517 6 GUESS RD PROP-FIELDS EARL-G COTTON /CAROLINA DUKE INN/TR#A PL:000090-000042
   
Property Owner Owner's Mailing Address
KPIF DURHAM APARTMENTS LLC
60 EAST SOUTH TEMPLE STE 2100
SALT LAKE CITY UT 84111

Value subject to change, property assessment under review

Parcel
Buildings
Misc Improvements
Land
Deeds
Notes
Sales
Photos
Map
Building Location Address
2517 GUESS RD
Card   of  6        Section   of  2
Building Details

Building Name APARTMENTS
Primary Occupancy Type COMMERCIAL
Primary Occupancy 01M-APT-GARDEN-MASON
Primary Class M
Primary Quality C
Year Built 1980
Effective Year 1980
Physical Depreciation (Rating) CGW-CDU PERCENTAGE
Physical Depreciation (% Bad) 41.00%
Economic Depreciation (% Bad) 0%
Functional Depreciation (% Bad) 0%
Gross Leasable Area (SQFT) 6500
Remodeled Year
Total Stories

Section Details

Occupancy Type COMMERCIAL


Class M
Depreciation 41%
Depreciation CGW-CDU PERCENTAGE
Heat 11-UN-WALL-HEAT-COM
Occupancy 46M-LAUNDROMAT-MAS
Quality C
Exterior Walls N/A-EXT-WALL
Building Total & Improvement Details

Total Adjusted Replacement Cost New
Physical Depreciation (% Bad) 41.00%
Depreciated Value
Economic Depreciation (% Bad) 0%
Functional Depreciation (% Bad) 0%
Total Depreciated Value
Market Area Factor 1.00
Building Value
Misc Improvements Value
Total Improvement Value

Assessed Land Value
   
Assessed Total Value


Addition Summary 
StoryTypeCodeArea
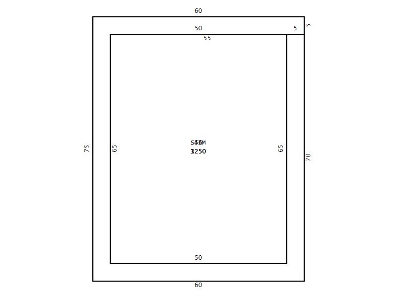
1.00 Canopy Commercial 41 1250
 
Other Improvements 
 


Building Sketch
Photograph
Building Sketch Photo is unavailable for this parcel.
(Click sketch for bigger image)




Copyright © 2022 Durham County, North Carolina.