Building Summary

Data last updated on: 4/2/2026     Ownership current as of: 3/30/2026     Tax Year: 2026
REID 125188

PIN # 0822-18-8173

Location Address Property Description
2013 WALNUT ST WARREN PARK RESUB/BLK:A/L T#12 PL:000035-000011
   
Property Owner Owner's Mailing Address
CURTIS, COLIN
2108 SUNSET AVE
DURHAM NC 27705
Parcel
Buildings
Misc Improvements
Land
Deeds
Notes
Sales
Photos
Map
Building Location Address
2013 WALNUT ST
Building Description
RESMS-RES-MS-OR-EQ
Card   of  1
Bldg Type RESIDENTIAL
Units 1
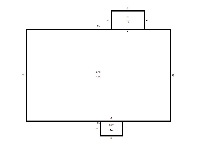
Living Area (SQFT) 975
Number of Stories 1.00
Style RAN-RANCH
Foundation 04-P-FOOTING/CRWL-SP
Exterior 02-BRICK
Const Type
Heating 05-PACKAGE-HEAT/COOL
Air Cond
Plumbing Baths (Full):   1
Baths (Half):   0
Extra Fixtures:   0
Total Plumbing Fixtures:   3 
Bedrooms 3
Main Body (SQFT) 975
Year Built 1959
Additions 2
Effective Year 1959
Remodeled 0
Interior Adj.
Other Features
Building Total & Improvement Details

Grade C+ 110%
Percentage Complete 100
Total Adjusted Replacement Cost New $219,681
Physical Depreciation (% Bad) 0%
Depreciated Value $142,793
Economic Depreciation (% Bad) 0%
Functional Depreciation (% Bad) 0%
Total Depreciated Value $142,793
Market Area Factor 1.00
Building Value $142,793
Misc Improvements Value $1,640
Total Improvement Value $144,433

Assessed Land Value $192,500
   
Assessed Total Value $336,933



Addition Summary 
StoryTypeCodeArea
1.00 Terrace/Raised Patio 16T 24
1.00 Storage Utility 32 45
 
Other Improvements 
UnitsDescriptionItemCodeYear% BadValue
480 SIZE Patio 1959 75 1640
 


Building Sketch
Photograph
Building Sketch Building Photo
(Click sketch for bigger image)




Copyright © 2022 Durham County, North Carolina.