Building Summary

Data last updated on: 4/2/2026     Ownership current as of: 3/30/2026     Tax Year: 2026
REID 125206

PIN # 0822-28-1486

Location Address Property Description
2009 CAROLINA AVE WARREN PARK RESUB/BLK:B/L T#14 PL:000035-000011
   
Property Owner Owner's Mailing Address
LOURITT, KARYN
2009 CAROLINA AVE
DURHAM NC 27705
Parcel
Buildings
Misc Improvements
Land
Deeds
Notes
Sales
Photos
Map
Building Location Address
2009 CAROLINA AVE
Building Description
RESFR-RES-FRM-OR-EQ
Card   of  1
Bldg Type RESIDENTIAL
Units 1
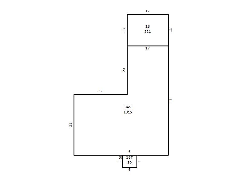
Living Area (SQFT) 1315
Number of Stories 1.00
Style RAN-RANCH
Foundation 04-P-FOOTING/CRWL-SP
Exterior 02-BRICK
Const Type
Heating 05-PACKAGE-HEAT/COOL
Air Cond
Plumbing Baths (Full):   1
Baths (Half):   0
Extra Fixtures:   0
Total Plumbing Fixtures:   3 
Bedrooms 4
Main Body (SQFT) 1315
Year Built 1959
Additions 2
Effective Year 1959
Remodeled 0
Interior Adj.
Other Features
Building Total & Improvement Details

Grade C+ 110%
Percentage Complete 100
Total Adjusted Replacement Cost New $264,194
Physical Depreciation (% Bad) 0%
Depreciated Value $145,307
Economic Depreciation (% Bad) 0%
Functional Depreciation (% Bad) 0%
Total Depreciated Value $145,307
Market Area Factor 1.00
Building Value $145,307
Misc Improvements Value $7,854
Total Improvement Value $153,161

Assessed Land Value $167,750
   
Assessed Total Value $320,911



Addition Summary 
StoryTypeCodeArea
1.00 Terrace/Raised Patio 16T 30
1.00 Covered Porch 18 221
 
Other Improvements 
UnitsDescriptionItemCodeYear% BadValue
400 SIZE Carport w/Floor 1980 65 2253
400 SIZE Garage Frame 1980 65 5601
 


Building Sketch
Photograph
Building Sketch Building Photo
(Click sketch for bigger image)




Copyright © 2022 Durham County, North Carolina.