Building Summary

Data last updated on: 4/2/2026     Ownership current as of: 3/30/2026     Tax Year: 2026
REID 125212

PIN # 0822-28-0421

Location Address Property Description
2014 WALNUT ST WARREN PARK RESUB/BLK:B/L T#08 PL:000035-000011
   
Property Owner Owner's Mailing Address
FERGERSON, AVA;WHITFIELD, MEREDITH
2014 WALNUT ST
DURHAM NC 27705
Parcel
Buildings
Misc Improvements
Land
Deeds
Notes
Sales
Photos
Map
Building Location Address
2014 WALNUT ST
Building Description
RESFR-RES-FRM-OR-EQ
Card   of  1
Bldg Type RESIDENTIAL
Units 1
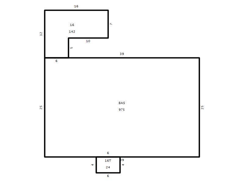
Living Area (SQFT) 975
Number of Stories 1.00
Style RAN-RANCH
Foundation 04-P-FOOTING/CRWL-SP
Exterior 08-VINYL/ALUMINUM
Const Type
Heating 05-PACKAGE-HEAT/COOL
Air Cond
Plumbing Baths (Full):   1
Baths (Half):   0
Extra Fixtures:   0
Total Plumbing Fixtures:   3 
Bedrooms 3
Main Body (SQFT) 975
Year Built 1959
Additions 3
Effective Year 1959
Remodeled 0
Interior Adj.
Other Features
Building Total & Improvement Details

Grade C+ 110%
Percentage Complete 100
Total Adjusted Replacement Cost New $214,206
Physical Depreciation (% Bad) 0%
Depreciated Value $139,234
Economic Depreciation (% Bad) 0%
Functional Depreciation (% Bad) 0%
Total Depreciated Value $139,234
Market Area Factor 1.00
Building Value $139,234
Misc Improvements Value $139
Total Improvement Value $139,373

Assessed Land Value $166,375
   
Assessed Total Value $305,748



Addition Summary 
StoryTypeCodeArea
1.00 Terrace/Raised Patio 16T 24
1.00 Frame Deck 16 142
1.00 Storage Utility 32 50
 
Other Improvements 
UnitsDescriptionItemCodeYear% BadValue
80 SIZE Shed (Open Pole) 1980 75 139
 


Building Sketch
Photograph
Building Sketch Building Photo
(Click sketch for bigger image)




Copyright © 2022 Durham County, North Carolina.