Building Summary

Data last updated on: 4/1/2026     Ownership current as of: 3/27/2026     Tax Year: 2026
REID 125251

PIN # 0812-42-5719

Location Address Property Description
600 S LASALLE ST PROP-POPLAR APARTMENTS IN C/DBA-MIDDLETON APTS PL:000024-000088
   
Property Owner Owner's Mailing Address
TRINITY PROPERTIES LLC
2723 CAMPUS WALK AVE
DURHAM NC 27705
Parcel
Buildings
Misc Improvements
Land
Deeds
Notes
Sales
Photos
Map
Building Location Address
600 S LASALLE ST
Card   of  5        Section   of  1
Building Details

Building Name APARTMENT GARDEN MASONRY
Primary Occupancy Type COMMERCIAL
Primary Occupancy 01M-APT-GARDEN-MASON
Primary Class H1M
Primary Quality C
Year Built 1969
Effective Year 1969
Physical Depreciation (Rating) CAW-CDU PERCENTAGE
Physical Depreciation (% Bad) 55.00%
Economic Depreciation (% Bad) 0%
Functional Depreciation (% Bad) 0%
Gross Leasable Area (SQFT) 7192
Remodeled Year
Total Stories

Section Details

Occupancy Type COMMERCIAL


Class H1M
Depreciation 55%
Depreciation CAW-CDU PERCENTAGE
Heat 15-HEAT-&-AC-COM
Exterior Walls N/A-EXT-WALL
Quality C
Occupancy 01M-APT-GARDEN-MASON
Building Total & Improvement Details

Total Adjusted Replacement Cost New $1,710,184
Physical Depreciation (% Bad) 55.00%
Depreciated Value $769,583
Economic Depreciation (% Bad) 0%
Functional Depreciation (% Bad) 0%
Total Depreciated Value $769,583
Market Area Factor 1.00
Building Value $769,583
Misc Improvements Value $39,313
Total Improvement Value $808,896

Assessed Land Value $2,600,000
   
Assessed Total Value $13,473,871


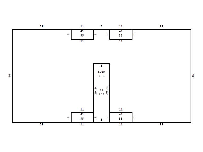
Addition Summary 
StoryTypeCodeArea
2.00 Canopy Commercial 41 55
2.00 Canopy Commercial 41 232
2.00 Canopy Commercial 41 55
2.00 Canopy Commercial 41 55
2.00 Canopy Commercial 41 55
 
Other Improvements 
UnitsDescriptionItemCodeYear% BadValue
37000 SIZE Asphalt Paving 1969 75 39313
 


Building Sketch
Photograph
Building Sketch Building Photo
(Click sketch for bigger image)




Copyright © 2022 Durham County, North Carolina.