Building Summary

Data last updated on: 4/2/2026     Ownership current as of: 3/30/2026     Tax Year: 2026
REID 125551

PIN # 0823-01-4435

Location Address Property Description
2900 OMAH ST PROP-CRABTREE ASSOCIATES INC/LT#04 PL:000090-000070
   
Property Owner Owner's Mailing Address
BAF ASSETS 2 LLC
3903 S CONGRESS AVE STE 40298
AUSTIN TX 78704
Parcel
Buildings
Misc Improvements
Land
Deeds
Notes
Sales
Photos
Map
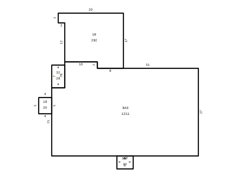
Building Location Address
2900 OMAH ST
Building Description
RESMS-RES-MS-OR-EQ
Card   of  1
Bldg Type RESIDENTIAL
Units 1
Living Area (SQFT) 1211
Number of Stories 1.00
Style RAN-RANCH
Foundation 04-P-FOOTING/CRWL-SP
Exterior 02-BRICK
Const Type
Heating 05-PACKAGE-HEAT/COOL
Air Cond
Plumbing Baths (Full):   2
Baths (Half):   0
Extra Fixtures:   0
Total Plumbing Fixtures:   6 
Bedrooms 3
Main Body (SQFT) 1211
Year Built 1977
Additions 4
Effective Year 1977
Remodeled 0
Interior Adj.
Other Features
Building Total & Improvement Details

Grade C+15 115%
Percentage Complete 100
Total Adjusted Replacement Cost New $281,114
Physical Depreciation (% Bad) 0%
Depreciated Value $185,535
Economic Depreciation (% Bad) 0%
Functional Depreciation (% Bad) 0%
Total Depreciated Value $185,535
Market Area Factor 1.00
Building Value $185,535
Misc Improvements Value $2,808
Total Improvement Value $188,343

Assessed Land Value $139,500
   
Assessed Total Value $327,843



Addition Summary 
StoryTypeCodeArea
1.00 Frame Deck 16 292
1.00 Terrace/Raised Patio 16T 20
1.00 Covered Porch 18 20
1.00 Storage Utility 32 28
 
Other Improvements 
UnitsDescriptionItemCodeYear% BadValue
480 SIZE Storage Building 1977 75 2808
 


Building Sketch
Photograph
Building Sketch Building Photo
(Click sketch for bigger image)




Copyright © 2022 Durham County, North Carolina.