Building Summary

Data last updated on: 3/31/2026     Ownership current as of: 3/26/2026     Tax Year: 2026
REID 125611

PIN # 0813-91-6957

Location Address Property Description
2014 DARTMOUTH DR PROP-KIRKLAND L D/LT#69-7 0 PL:00006A-000023
   
Property Owner Owner's Mailing Address
STAR BORROWER SFR6 LP
16220 N SCOTTSDALE RD STE 450
SCOTTSDALE AZ 85254
Parcel
Buildings
Misc Improvements
Land
Deeds
Notes
Sales
Photos
Map
Building Location Address
2014 DARTMOUTH DR
Building Description
RESMS-RES-MS-OR-EQ
Card   of  1
Bldg Type RESIDENTIAL
Units 1
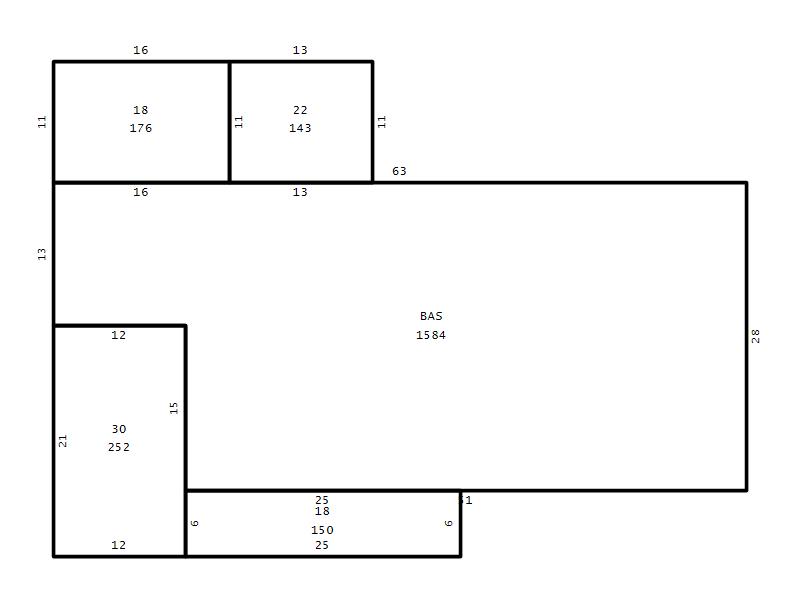
Living Area (SQFT) 1584
Number of Stories 1.00
Style RAN-RANCH
Foundation 04-P-FOOTING/CRWL-SP
Exterior 02-BRICK
Const Type
Heating 05-PACKAGE-HEAT/COOL
Air Cond
Plumbing Baths (Full):   2
Baths (Half):   0
Extra Fixtures:   0
Total Plumbing Fixtures:   6 
Bedrooms 3
Main Body (SQFT) 1584
Year Built 1961
Additions 4
Effective Year 1961
Remodeled 0
Interior Adj.
Other Features
Building Total & Improvement Details

Grade C+15 115%
Percentage Complete 100
Total Adjusted Replacement Cost New $366,193
Physical Depreciation (% Bad) 0%
Depreciated Value $238,025
Economic Depreciation (% Bad) 0%
Functional Depreciation (% Bad) 0%
Total Depreciated Value $238,025
Market Area Factor 1.00
Building Value $238,025
Misc Improvements Value
Total Improvement Value $238,025

Assessed Land Value $162,000
   
Assessed Total Value $400,025



Addition Summary 
StoryTypeCodeArea
1.00 Covered Porch 18 150
1.00 Enclosed Porch 22 143
1.00 Carport 30 252
1.00 Covered Porch 18 176
 
Other Improvements 
 


Building Sketch
Photograph
Building Sketch Building Photo
(Click sketch for bigger image)




Copyright © 2022 Durham County, North Carolina.