Building Summary

Data last updated on: 3/31/2026     Ownership current as of: 3/26/2026     Tax Year: 2026
REID 125662

PIN # 0823-03-7501

Location Address Property Description
3405 GUESS RD PROP-BISHOP J M & HUNT T M/LT#01 & LT#02 PT PL:000019-000180
   
Property Owner Owner's Mailing Address
WA AGUILAR PROPERTIES LLC
1511 BELLEVUE AVE
DURHAM NC 27705
Parcel
Buildings
Misc Improvements
Land
Deeds
Notes
Sales
Photos
Map
Building Location Address
3405 GUESS RD
Building Description
RESMS-RES-MS-OR-EQ
Card   of  1
Bldg Type RESIDENTIAL
Units 1
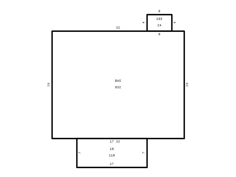
Living Area (SQFT) 832
Number of Stories 1.00
Style CAP-CAPE-COD
Foundation 04-P-FOOTING/CRWL-SP
Exterior 02-BRICK
Const Type
Heating 05-PACKAGE-HEAT/COOL
Air Cond
Plumbing Baths (Full):   1
Baths (Half):   0
Extra Fixtures:   0
Total Plumbing Fixtures:   3 
Bedrooms 2
Main Body (SQFT) 832
Year Built 1947
Additions 3
Effective Year 1947
Remodeled 0
Interior Adj.
Other Features
Building Total & Improvement Details

Grade C+15 115%
Percentage Complete 100
Total Adjusted Replacement Cost New $237,725
Physical Depreciation (% Bad) 0%
Depreciated Value $154,521
Economic Depreciation (% Bad) 0%
Functional Depreciation (% Bad) 0%
Total Depreciated Value $154,521
Market Area Factor 1.00
Building Value $154,521
Misc Improvements Value $8,449
Total Improvement Value $162,970

Assessed Land Value $138,375
   
Assessed Total Value $301,345



Addition Summary 
StoryTypeCodeArea
1.00 Stoop 16S 24
1.00 Covered Porch 18 119
1.00 Attic Unfinished 08 208
 
Other Improvements 
UnitsDescriptionItemCodeYear% BadValue
528 SIZE Garage Frame 1975 70 8449
 


Building Sketch
Photograph
Building Sketch Building Photo
(Click sketch for bigger image)




Copyright © 2022 Durham County, North Carolina.