Building Summary

Data last updated on: 4/2/2026     Ownership current as of: 3/30/2026     Tax Year: 2026
REID 125673

PIN # 0823-03-1768

Location Address Property Description
2717 CAMMIE ST PROP-CHAMBLY J K FARM/SEC :2/BLK:G/LT#04-B/05-AB PL:000014-000092
   
Property Owner Owner's Mailing Address
COLEMAX-JORDAN LLC
12050 IREDELL
CHAPEL HILL NC 27517
Parcel
Buildings
Misc Improvements
Land
Deeds
Notes
Sales
Photos
Map
Building Location Address
2717 CAMMIE ST
Building Description
RESMS-RES-MS-OR-EQ
Card   of  1
Bldg Type RESIDENTIAL
Units 1
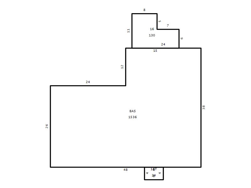
Living Area (SQFT) 1536
Number of Stories 1.00
Style RAN-RANCH
Foundation 04-P-FOOTING/CRWL-SP
Exterior 02-BRICK
Const Type
Heating 05-PACKAGE-HEAT/COOL
Air Cond
Plumbing Baths (Full):   1
Baths (Half):   0
Extra Fixtures:   0
Total Plumbing Fixtures:   3 
Bedrooms 3
Main Body (SQFT) 1536
Year Built 1955
Additions 2
Effective Year 1955
Remodeled 0
Interior Adj.
Other Features
Building Total & Improvement Details

Grade C+15 115%
Percentage Complete 100
Total Adjusted Replacement Cost New $324,956
Physical Depreciation (% Bad) 0%
Depreciated Value $129,982
Economic Depreciation (% Bad) 0%
Functional Depreciation (% Bad) 0%
Total Depreciated Value $129,982
Market Area Factor 1.00
Building Value $129,982
Misc Improvements Value $258
Total Improvement Value $130,240

Assessed Land Value $160,875
   
Assessed Total Value $291,115



Addition Summary 
StoryTypeCodeArea
1.00 Frame Deck 16 130
1.00 Terrace/Raised Patio 16T 24
 
Other Improvements 
UnitsDescriptionItemCodeYear% BadValue
6x9 DIMENSIONS Storage Building 1955 75 258
 


Building Sketch
Photograph
Building Sketch Building Photo
(Click sketch for bigger image)




Copyright © 2022 Durham County, North Carolina.