Building Summary

Data last updated on: 3/31/2026     Ownership current as of: 3/26/2026     Tax Year: 2026
REID 125735

PIN # 0813-93-2817

Location Address Property Description
2246 HILLANDALE RD PROP-CHAMBLY J K FARM/SEC :2/BLK:A/LT#18-AB/19-ABP PL:000012-000107
   
Property Owner Owner's Mailing Address
URBINA, DONNA LEE;URBINA, MANUEL
2220 E PALM ST
DAVENPORT FL 33837
Parcel
Buildings
Misc Improvements
Land
Deeds
Notes
Sales
Photos
Map
Building Location Address
2246 HILLANDALE RD
Building Description
RESMS-RES-MS-OR-EQ
Card   of  1
Bldg Type RESIDENTIAL
Units 1
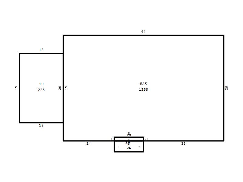
Living Area (SQFT) 1268
Number of Stories 1.00
Style RAN-RANCH
Foundation 04-P-FOOTING/CRWL-SP
Exterior 02-BRICK
Const Type
Heating 05-PACKAGE-HEAT/COOL
Air Cond
Plumbing Baths (Full):   1
Baths (Half):   0
Extra Fixtures:   0
Total Plumbing Fixtures:   3 
Bedrooms 3
Main Body (SQFT) 1268
Year Built 1954
Additions 3
Effective Year 1954
Remodeled 0
Interior Adj.
Other Features
Building Total & Improvement Details

Grade C+15 115%
Percentage Complete 100
Total Adjusted Replacement Cost New $292,629
Physical Depreciation (% Bad) 0%
Depreciated Value $160,946
Economic Depreciation (% Bad) 0%
Functional Depreciation (% Bad) 0%
Total Depreciated Value $160,946
Market Area Factor 1.00
Building Value $160,946
Misc Improvements Value $468
Total Improvement Value $161,414

Assessed Land Value $147,375
   
Assessed Total Value $308,789



Addition Summary 
StoryTypeCodeArea
1.00 Terrace/Raised Patio 16T 24
1.00 Covered Porch 18 8
1.00 Screen Porch 19 228
 
Other Improvements 
UnitsDescriptionItemCodeYear% BadValue
10x10 DIMENSIONS Storage Building 1993 75 468
 


Building Sketch
Photograph
Building Sketch Building Photo
(Click sketch for bigger image)




Copyright © 2022 Durham County, North Carolina.