Building Summary

Data last updated on: 4/2/2026     Ownership current as of: 3/30/2026     Tax Year: 2026
REID 125737

PIN # 0813-93-2737

Location Address Property Description
2244 HILLANDALE RD PROP-CHAMBLY J K FARM/SEC :2/BLK:A/LT#16-AB/17-AB PL:000012-000107
   
Property Owner Owner's Mailing Address
GUNN, MITCHELL;GUNN, KELLIE
2244 HILLANDALE RD
DURHAM NC 27705
Parcel
Buildings
Misc Improvements
Land
Deeds
Notes
Sales
Photos
Map
Building Location Address
2244 HILLANDALE RD
Building Description
RESMS-RES-MS-OR-EQ
Card   of  1
Bldg Type RESIDENTIAL
Units 1
Living Area (SQFT) 1420
Number of Stories 1.00
Style RAN-RANCH
Foundation 06-BASEMENT
Exterior 02-BRICK
Const Type
Heating 05-PACKAGE-HEAT/COOL
Air Cond
Plumbing Baths (Full):   1
Baths (Half):   0
Extra Fixtures:   0
Total Plumbing Fixtures:   3 
Bedrooms 3
Main Body (SQFT) 1420
Year Built 1947
Additions 6
Effective Year 1947
Remodeled 0
Interior Adj.
Other Features
Building Total & Improvement Details

Grade C+15 115%
Percentage Complete 100
Total Adjusted Replacement Cost New $396,316
Physical Depreciation (% Bad) 0%
Depreciated Value $217,974
Economic Depreciation (% Bad) 0%
Functional Depreciation (% Bad) 0%
Total Depreciated Value $217,974
Market Area Factor 1.00
Building Value $217,974
Misc Improvements Value $42,083
Total Improvement Value $260,057

Assessed Land Value $158,625
   
Assessed Total Value $418,682



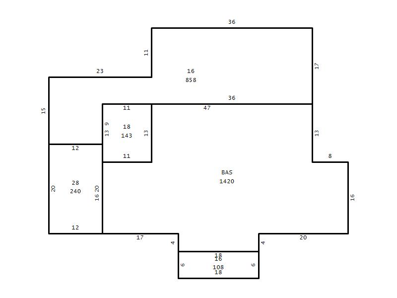
Addition Summary 
StoryTypeCodeArea
1.00 Frame Deck 16 858
1.00 Covered Porch 18 143
1.00 Garage 28 240
1.00 Frame Deck 16 108
1.00 Attic Unfinished 08 426
1.00 Unfinished Basement 10 435
 
Other Improvements 
UnitsDescriptionItemCodeYear% BadValue
875 SIZE Shop 1985 60 14884
648 SIZE Swimming Pool/Fiberglass 1990 50 27199
 


Building Sketch
Photograph
Building Sketch Building Photo
(Click sketch for bigger image)




Copyright © 2022 Durham County, North Carolina.