Building Summary

Data last updated on: 4/2/2026     Ownership current as of: 3/30/2026     Tax Year: 2026
REID 125809

PIN # 0823-04-0419

Location Address Property Description
3320 ALABAMA AVE PROP-CHAMBLY J K FARM/SEC :2/BLK:E/LT#17 PT PL:000012-000117
   
Property Owner Owner's Mailing Address
MADHAVAN, SIDHARTH;MADHAVAN, SYDNEY
3320 ALABAMA AVE
DURHAM NC 27705
Parcel
Buildings
Misc Improvements
Land
Deeds
Notes
Sales
Photos
Map
Building Location Address
3320 ALABAMA AVE
Building Description
RESMS-RES-MS-OR-EQ
Card   of  1
Bldg Type RESIDENTIAL
Units 1
Living Area (SQFT) 1358
Number of Stories 1.00
Style RAN-RANCH
Foundation 04-P-FOOTING/CRWL-SP
Exterior 02-BRICK
Const Type
Heating 05-PACKAGE-HEAT/COOL
Air Cond
Plumbing Baths (Full):   2
Baths (Half):   0
Extra Fixtures:   0
Total Plumbing Fixtures:   6 
Bedrooms 3
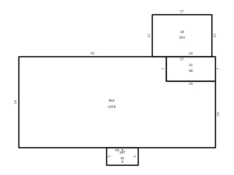
Main Body (SQFT) 1358
Year Built 1968
Additions 3
Effective Year 1968
Remodeled 0
Interior Adj.
Other Features
Building Total & Improvement Details

Grade C+15 115%
Percentage Complete 100
Total Adjusted Replacement Cost New $301,732
Physical Depreciation (% Bad) 0%
Depreciated Value $184,057
Economic Depreciation (% Bad) 0%
Functional Depreciation (% Bad) 0%
Total Depreciated Value $184,057
Market Area Factor 1.00
Building Value $184,057
Misc Improvements Value $569
Total Improvement Value $184,626

Assessed Land Value $141,750
   
Assessed Total Value $326,376



Addition Summary 
StoryTypeCodeArea
1.00 Frame Deck 16 204
1.00 Terrace/Raised Patio 16T 45
1.00 Storage Utility 32 98
 
Other Improvements 
UnitsDescriptionItemCodeYear% BadValue
16x16 DIMENSIONS Shed (Open Pole) 1990 75 569
 


Building Sketch
Photograph
Building Sketch Building Photo
(Click sketch for bigger image)




Copyright © 2022 Durham County, North Carolina.