Building Summary

Data last updated on: 4/2/2026     Ownership current as of: 3/30/2026     Tax Year: 2026
REID 125902

PIN # 0823-62-8104

Location Address Property Description
2711 BROAD ST LOCKELAND/BLK:G/LT#80AB/8 1B PL:00006B-000159
   
Property Owner Owner's Mailing Address
GRACE, WILLIE;GRACE, SHELLOUY
2711 BROAD ST
DURHAM NC 27704
Parcel
Buildings
Misc Improvements
Land
Deeds
Notes
Sales
Photos
Map
Building Location Address
2711 BROAD ST
Building Description
RESFR-RES-FRM-OR-EQ
Card   of  1
Bldg Type RESIDENTIAL
Units 1
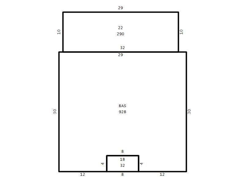
Living Area (SQFT) 928
Number of Stories 1.00
Style RAN-RANCH
Foundation 04-P-FOOTING/CRWL-SP
Exterior 08-VINYL/ALUMINUM
Const Type
Heating 03-FORCED-HOT-AIR
Air Cond
Plumbing Baths (Full):   1
Baths (Half):   0
Extra Fixtures:   0
Total Plumbing Fixtures:   3 
Bedrooms 2
Main Body (SQFT) 928
Year Built 1940
Additions 2
Effective Year 1940
Remodeled 0
Interior Adj.
Other Features
Building Total & Improvement Details

Grade D+ 85%
Percentage Complete 100
Total Adjusted Replacement Cost New $170,245
Physical Depreciation (% Bad) 0%
Depreciated Value $93,635
Economic Depreciation (% Bad) 0%
Functional Depreciation (% Bad) 0%
Total Depreciated Value $93,635
Market Area Factor 1.00
Building Value $93,635
Misc Improvements Value $327
Total Improvement Value $93,962

Assessed Land Value $148,800
   
Assessed Total Value $242,762



Addition Summary 
StoryTypeCodeArea
1.00 Covered Porch 18 32
1.00 Enclosed Porch 22 290
 
Other Improvements 
UnitsDescriptionItemCodeYear% BadValue
12x12 DIMENSIONS Shed (Open Pole) 2000 75 327
 


Building Sketch
Photograph
Building Sketch Building Photo
(Click sketch for bigger image)




Copyright © 2022 Durham County, North Carolina.