Building Summary

Data last updated on: 4/2/2026     Ownership current as of: 3/30/2026     Tax Year: 2026
REID 126151

PIN # 0823-33-7277

Location Address Property Description
2204 W CARVER ST DOGWOOD ACRES/BLK:D/LT#22 PL:000024-000086
   
Property Owner Owner's Mailing Address
JONES, JAY R
2204 W CARVER ST
DURHAM NC 27705
Parcel
Buildings
Misc Improvements
Land
Deeds
Notes
Sales
Photos
Map
Building Location Address
2204 W CARVER ST
Building Description
RESFR-RES-FRM-OR-EQ
Card   of  1
Bldg Type RESIDENTIAL
Units 1
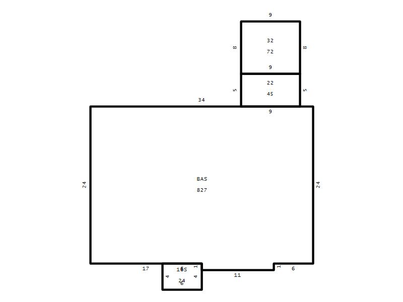
Living Area (SQFT) 827
Number of Stories 1.00
Style RAN-RANCH
Foundation 04-P-FOOTING/CRWL-SP
Exterior 08-VINYL/ALUMINUM
Const Type
Heating 05-PACKAGE-HEAT/COOL
Air Cond
Plumbing Baths (Full):   1
Baths (Half):   0
Extra Fixtures:   0
Total Plumbing Fixtures:   3 
Bedrooms 2
Main Body (SQFT) 827
Year Built 1937
Additions 3
Effective Year 1937
Remodeled 0
Interior Adj.
Other Features
Building Total & Improvement Details

Grade C+ 110%
Percentage Complete 100
Total Adjusted Replacement Cost New $197,065
Physical Depreciation (% Bad) 0%
Depreciated Value $78,826
Economic Depreciation (% Bad) 0%
Functional Depreciation (% Bad) 0%
Total Depreciated Value $78,826
Market Area Factor 1.00
Building Value $78,826
Misc Improvements Value $2,478
Total Improvement Value $81,304

Assessed Land Value $156,000
   
Assessed Total Value $237,304



Addition Summary 
StoryTypeCodeArea
1.00 Stoop 16S 24
1.00 Enclosed Porch 22 45
1.00 Storage Utility 32 72
 
Other Improvements 
UnitsDescriptionItemCodeYear% BadValue
168 SIZE Shed (Open Pole) 1994 75 373
18x19 DIMENSIONS Carport w/Floor 1937 75 2105
 


Building Sketch
Photograph
Building Sketch Building Photo
(Click sketch for bigger image)




Copyright © 2022 Durham County, North Carolina.