Building Summary

Data last updated on: 4/2/2026     Ownership current as of: 3/30/2026     Tax Year: 2026
REID 126297

PIN # 0823-20-5486

Location Address Property Description
2128 STREBOR ST PROP-ROBERTS BRUCE S-SUSA N B/LT#01 PL:000148-000031
   
Property Owner Owner's Mailing Address
CAMPOS, ELMAN ISMAEL;CONTRERAS, FLOR AZUCENA CHAVEZ
2128 STREBOR ST
DURHAM NC 27705
Parcel
Buildings
Misc Improvements
Land
Deeds
Notes
Sales
Photos
Map
Building Location Address
2128 STREBOR ST
Building Description
RESFR-RES-FRM-OR-EQ
Card   of  1
Bldg Type RESIDENTIAL
Units 1
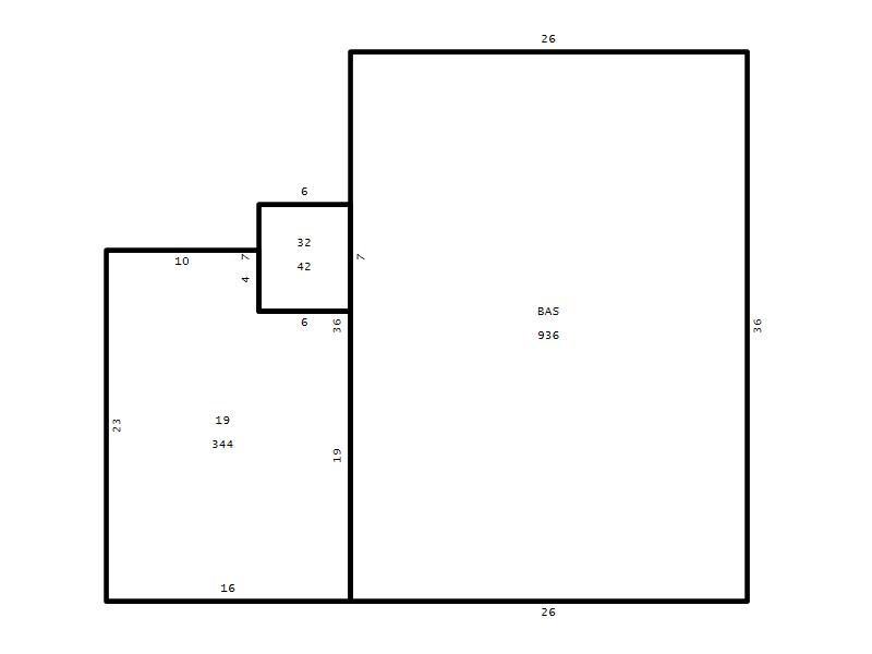
Living Area (SQFT) 936
Number of Stories 1.00
Style RAN-RANCH
Foundation 04-P-FOOTING/CRWL-SP
Exterior 09-HARD-B/CEMENTBRD
Const Type
Heating 05-PACKAGE-HEAT/COOL
Air Cond
Plumbing Baths (Full):   1
Baths (Half):   1
Extra Fixtures:   0
Total Plumbing Fixtures:   5 
Bedrooms 2
Main Body (SQFT) 936
Year Built 1972
Additions 2
Effective Year 1972
Remodeled 0
Interior Adj.
Other Features
Building Total & Improvement Details

Grade C- 95%
Percentage Complete 100
Total Adjusted Replacement Cost New $196,222
Physical Depreciation (% Bad) 0%
Depreciated Value $123,620
Economic Depreciation (% Bad) 0%
Functional Depreciation (% Bad) 0%
Total Depreciated Value $123,620
Market Area Factor 1.00
Building Value $123,620
Misc Improvements Value
Total Improvement Value $123,620

Assessed Land Value $163,200
   
Assessed Total Value $286,820



Addition Summary 
StoryTypeCodeArea
1.00 Screen Porch 19 344
1.00 Storage Utility 32 42
 
Other Improvements 
UnitsDescriptionItemCodeYear% BadValue
10x12 DIMENSIONS Shed Personal Property 1992 75
 


Building Sketch
Photograph
Building Sketch Building Photo
(Click sketch for bigger image)




Copyright © 2022 Durham County, North Carolina.