Building Summary

Data last updated on: 4/2/2026     Ownership current as of: 3/30/2026     Tax Year: 2026
REID 126310

PIN # 0823-30-1512

Location Address Property Description
4 GALAXY CT PINEWOOD/SEC:01-C/LT:05 PL:000098-000198
   
Property Owner Owner's Mailing Address
NGUYEN, JORDAN PATRICK;NGUYEN, ERIN ELIZABETH OBRIEN
4 GALAXY CT
DURHAM NC 27705
Parcel
Buildings
Misc Improvements
Land
Deeds
Notes
Sales
Photos
Map
Building Location Address
4 GALAXY CT
Building Description
RESFR-RES-FRM-OR-EQ
Card   of  1
Bldg Type RESIDENTIAL
Units 1
Living Area (SQFT) 1440
Number of Stories 2.00
Style COL-COLONIAL
Foundation 03-CONTINOUS-SLAB
Exterior 08-VINYL/ALUMINUM
Const Type
Heating 05-PACKAGE-HEAT/COOL
Air Cond
Plumbing Baths (Full):   2
Baths (Half):   0
Extra Fixtures:   0
Total Plumbing Fixtures:   6 
Bedrooms 3
Main Body (SQFT) 720
Year Built 1982
Additions 6
Effective Year 1982
Remodeled 0
Interior Adj.
Other Features
Building Total & Improvement Details

Grade C 100%
Percentage Complete 100
Total Adjusted Replacement Cost New $279,324
Physical Depreciation (% Bad) 0%
Depreciated Value $189,940
Economic Depreciation (% Bad) 0%
Functional Depreciation (% Bad) 0%
Total Depreciated Value $189,940
Market Area Factor 1.00
Building Value $189,940
Misc Improvements Value
Total Improvement Value $189,940

Assessed Land Value $146,400
   
Assessed Total Value $336,340



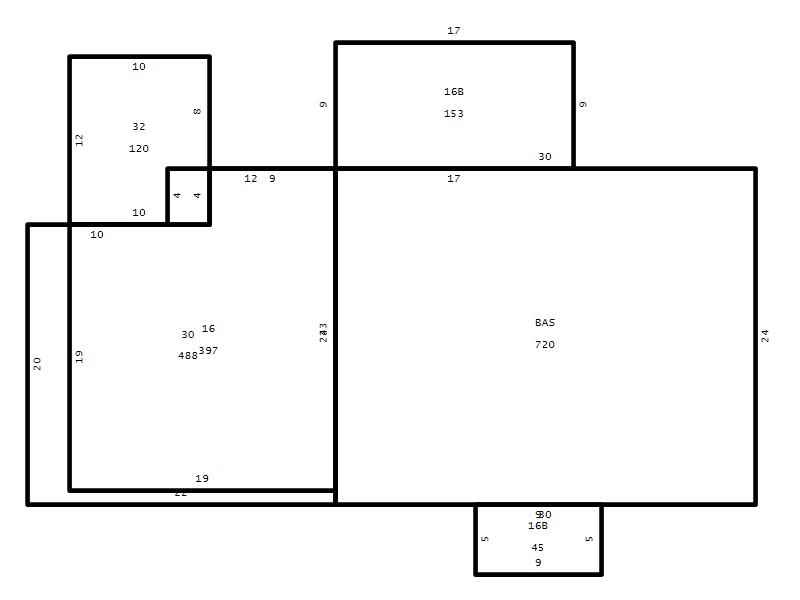
Addition Summary 
StoryTypeCodeArea
1.00 Frame Deck 16 397
1.00 Concrete Slab 16B 45
1.00 Carport 30 488
1.00 Storage Utility 32 120
1.00 Concrete Slab 16B 153
1.00 Res Frame 2Nd Flr FR02 720
 
Other Improvements 
 


Building Sketch
Photograph
Building Sketch Building Photo
(Click sketch for bigger image)




Copyright © 2022 Durham County, North Carolina.