Building Summary

Data last updated on: 4/2/2026     Ownership current as of: 3/30/2026     Tax Year: 2026
REID 126332

PIN # 0823-30-9572

Location Address Property Description
7 MISTY CREEK CT PINEWOOD/SEC:02-C/LT:04 PL:000101-000023
   
Property Owner Owner's Mailing Address
WEI, DONGLIN;JIANG, JIAMING
7 MISTY CREEK CT
DURHAM NC 27705
Parcel
Buildings
Misc Improvements
Land
Deeds
Notes
Sales
Photos
Map
Building Location Address
7 MISTY CREEK CT
Building Description
RESFR-RES-FRM-OR-EQ
Card   of  1
Bldg Type RESIDENTIAL
Units 1
Living Area (SQFT) 1796
Number of Stories 1.00
Style BTS-BI/TRI/SPLT-LEVL
Foundation 06-BASEMENT
Exterior 08-VINYL/ALUMINUM
Const Type
Heating 05-PACKAGE-HEAT/COOL
Air Cond
Plumbing Baths (Full):   2
Baths (Half):   0
Extra Fixtures:   0
Total Plumbing Fixtures:   6 
Bedrooms 3
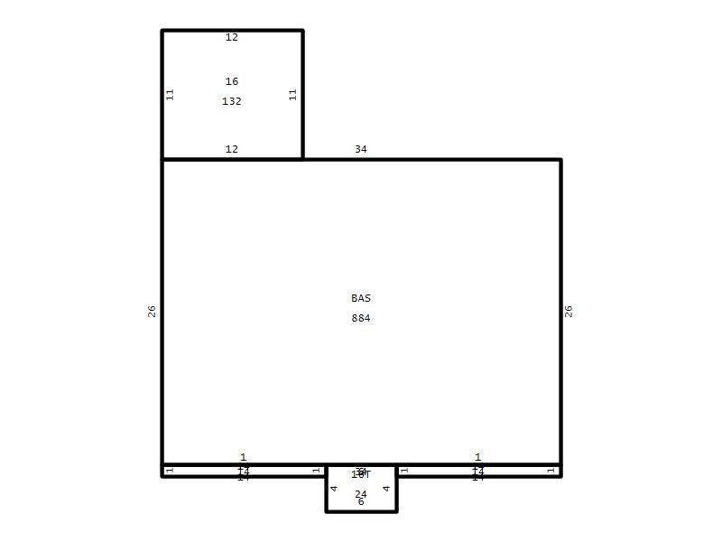
Main Body (SQFT) 884
Year Built 1983
Additions 5
Effective Year 1983
Remodeled 0
Interior Adj.
Other Features
Building Total & Improvement Details

Grade C+ 110%
Percentage Complete 100
Total Adjusted Replacement Cost New $281,813
Physical Depreciation (% Bad) 0%
Depreciated Value $194,451
Economic Depreciation (% Bad) 0%
Functional Depreciation (% Bad) 0%
Total Depreciated Value $194,451
Market Area Factor 1.00
Building Value $194,451
Misc Improvements Value $227
Total Improvement Value $194,678

Assessed Land Value $158,400
   
Assessed Total Value $353,078



Addition Summary 
StoryTypeCodeArea
1.00 Overhang 01 14
1.00 Frame Deck 16 132
1.00 Terrace/Raised Patio 16T 24
1.00 Overhang 01 14
1.00 Finished Basement 14 884
 
Other Improvements 
UnitsDescriptionItemCodeYear% BadValue
10x10 DIMENSIONS Shed (Open Pole) 1983 75 227
 


Building Sketch
Photograph
Building Sketch Building Photo
(Click sketch for bigger image)




Copyright © 2022 Durham County, North Carolina.