Building Summary

Data last updated on: 4/2/2026     Ownership current as of: 3/30/2026     Tax Year: 2026
REID 126403

PIN # 0823-10-9279

Location Address Property Description
2223 STREBOR ST SPRUCE KNOB/LT#01 PL:000107-000128
   
Property Owner Owner's Mailing Address
CBAR ASSET COMPANY LLC
3903 S CONGRESS AVE STE 40298
AUSTIN TX 78704
Parcel
Buildings
Misc Improvements
Land
Deeds
Notes
Sales
Photos
Map
Building Location Address
2223 STREBOR ST
Building Description
RESFR-RES-FRM-OR-EQ
Card   of  1
Bldg Type RESIDENTIAL
Units 1
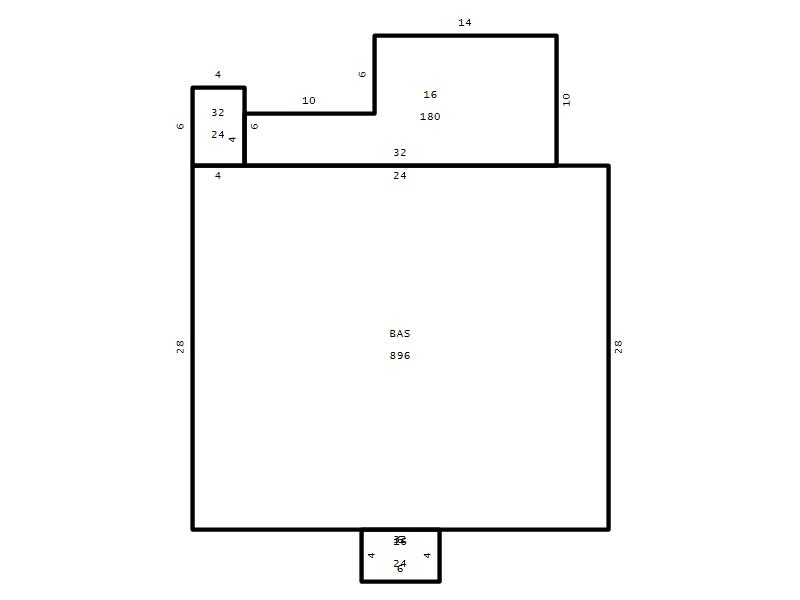
Living Area (SQFT) 1344
Number of Stories 1.50
Style CAP-CAPE-COD
Foundation 04-P-FOOTING/CRWL-SP
Exterior 01-WOOD-PANEL
Const Type
Heating 06-HEAT-PUMP
Air Cond
Plumbing Baths (Full):   2
Baths (Half):   0
Extra Fixtures:   0
Total Plumbing Fixtures:   6 
Bedrooms 3
Main Body (SQFT) 896
Year Built 1986
Additions 4
Effective Year 1986
Remodeled 0
Interior Adj.
Other Features
Building Total & Improvement Details

Grade C 100%
Percentage Complete 100
Total Adjusted Replacement Cost New $247,454
Physical Depreciation (% Bad) 0%
Depreciated Value $193,014
Economic Depreciation (% Bad) 0%
Functional Depreciation (% Bad) 0%
Total Depreciated Value $193,014
Market Area Factor 1.00
Building Value $193,014
Misc Improvements Value
Total Improvement Value $193,014

Assessed Land Value $142,800
   
Assessed Total Value $335,814



Addition Summary 
StoryTypeCodeArea
1.00 Frame Deck 16 180
1.00 Storage Utility 32 24
1.00 Frame Deck 16 24
1.00 Res Frame 2Nd Flr FR02 448
 
Other Improvements 
UnitsDescriptionItemCodeYear% BadValue
6x6 DIMENSIONS Shed Personal Property 1986 0
 


Building Sketch
Photograph
Building Sketch Building Photo
(Click sketch for bigger image)




Copyright © 2022 Durham County, North Carolina.