Building Summary

Data last updated on: 4/2/2026     Ownership current as of: 3/30/2026     Tax Year: 2026
REID 126556

PIN # 0823-11-8632

Location Address Property Description
2616 KIRK RD PROP-BOOTH E S/LT#20B-21A B PT PL:000012-000042
   
Property Owner Owner's Mailing Address
HEBNER, ASHLEIGH;WEBSTER, SARAH
2616 KIRK RD
DURHAM NC 27705
Parcel
Buildings
Misc Improvements
Land
Deeds
Notes
Sales
Photos
Map
Building Location Address
2616 KIRK RD
Building Description
RESFR-RES-FRM-OR-EQ
Card   of  1
Bldg Type RESIDENTIAL
Units 1
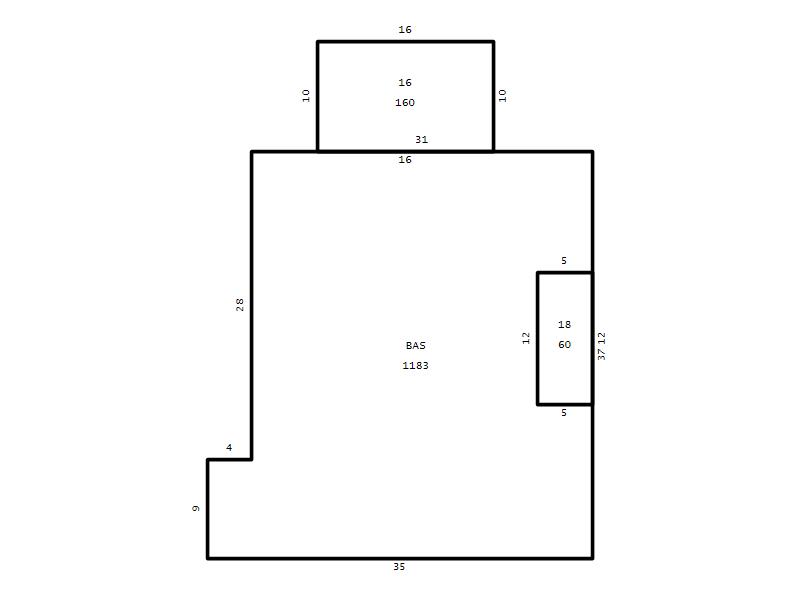
Living Area (SQFT) 1183
Number of Stories 1.00
Style RAN-RANCH
Foundation 04-P-FOOTING/CRWL-SP
Exterior 08-VINYL/ALUMINUM
Const Type
Heating 05-PACKAGE-HEAT/COOL
Air Cond
Plumbing Baths (Full):   2
Baths (Half):   0
Extra Fixtures:   0
Total Plumbing Fixtures:   6 
Bedrooms 3
Main Body (SQFT) 1183
Year Built 1952
Additions 2
Effective Year 1952
Remodeled 0
Interior Adj.
Other Features
Building Total & Improvement Details

Grade C 100%
Percentage Complete 100
Total Adjusted Replacement Cost New $226,521
Physical Depreciation (% Bad) 0%
Depreciated Value $147,239
Economic Depreciation (% Bad) 0%
Functional Depreciation (% Bad) 0%
Total Depreciated Value $147,239
Market Area Factor 1.00
Building Value $147,239
Misc Improvements Value $1,893
Total Improvement Value $149,132

Assessed Land Value $152,400
   
Assessed Total Value $301,532



Addition Summary 
StoryTypeCodeArea
1.00 Frame Deck 16 160
1.00 Covered Porch 18 60
 
Other Improvements 
UnitsDescriptionItemCodeYear% BadValue
8x16 DIMENSIONS Storage Building 1952 75 799
10x20 DIMENSIONS Canopy w/Floor 1952 75 1094
 


Building Sketch
Photograph
Building Sketch Building Photo
(Click sketch for bigger image)




Copyright © 2022 Durham County, North Carolina.