Building Summary

Data last updated on: 4/2/2026     Ownership current as of: 3/30/2026     Tax Year: 2026
REID 127098

PIN # 0823-38-8567

Location Address Property Description
2510 STADIUM DR VILLAGE GREEN NORTH/MAP:0 1/LT#16 PL:000096-000043
   
Property Owner Owner's Mailing Address
BAF ASSETS 3 LLC
3903 S CONGRESS AVE STE 40298
AUSTIN TX 78704
Parcel
Buildings
Misc Improvements
Land
Deeds
Notes
Sales
Photos
Map
Building Location Address
2510 STADIUM DR
Building Description
RESFR-RES-FRM-OR-EQ
Card   of  1
Bldg Type RESIDENTIAL
Units 1
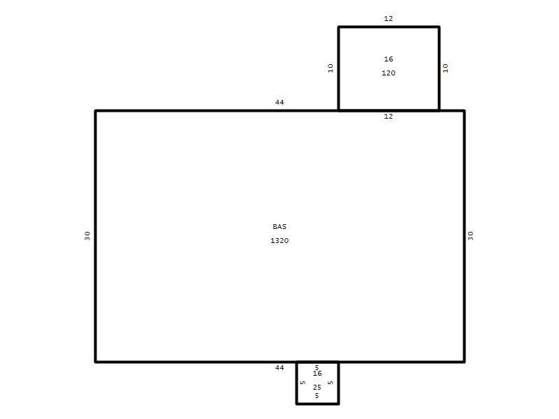
Living Area (SQFT) 1320
Number of Stories 1.00
Style RAN-RANCH
Foundation 04-P-FOOTING/CRWL-SP
Exterior 01-WOOD-PANEL
Const Type
Heating 06-HEAT-PUMP
Air Cond
Plumbing Baths (Full):   2
Baths (Half):   0
Extra Fixtures:   0
Total Plumbing Fixtures:   6 
Bedrooms 2
Main Body (SQFT) 1320
Year Built 1984
Additions 2
Effective Year 1984
Remodeled 0
Interior Adj.
Other Features
Building Total & Improvement Details

Grade C+ 110%
Percentage Complete 100
Total Adjusted Replacement Cost New $266,148
Physical Depreciation (% Bad) 0%
Depreciated Value $183,642
Economic Depreciation (% Bad) 0%
Functional Depreciation (% Bad) 0%
Total Depreciated Value $183,642
Market Area Factor 1.00
Building Value $183,642
Misc Improvements Value
Total Improvement Value $183,642

Assessed Land Value $110,700
   
Assessed Total Value $294,342



Addition Summary 
StoryTypeCodeArea
1.00 Frame Deck 16 120
1.00 Frame Deck 16 25
 
Other Improvements 
 


Building Sketch
Photograph
Building Sketch Building Photo
(Click sketch for bigger image)




Copyright © 2022 Durham County, North Carolina.