Building Summary

Data last updated on: 4/2/2026     Ownership current as of: 3/30/2026     Tax Year: 2026
REID 127191

PIN # 0823-48-3759

Location Address Property Description
8 BAIR CIR VILLAGE GREEN NORTH/MAP:0 2/LT#28 PL:000096-000044
   
Property Owner Owner's Mailing Address
PRESTIGE HOME SOLUTIONS LLC
500 CARDINAL DR
RALEIGH NC 27604
Parcel
Buildings
Misc Improvements
Land
Deeds
Notes
Sales
Photos
Map
Building Location Address
8 BAIR CIR
Building Description
RESFR-RES-FRM-OR-EQ
Card   of  1
Bldg Type RESIDENTIAL
Units 1
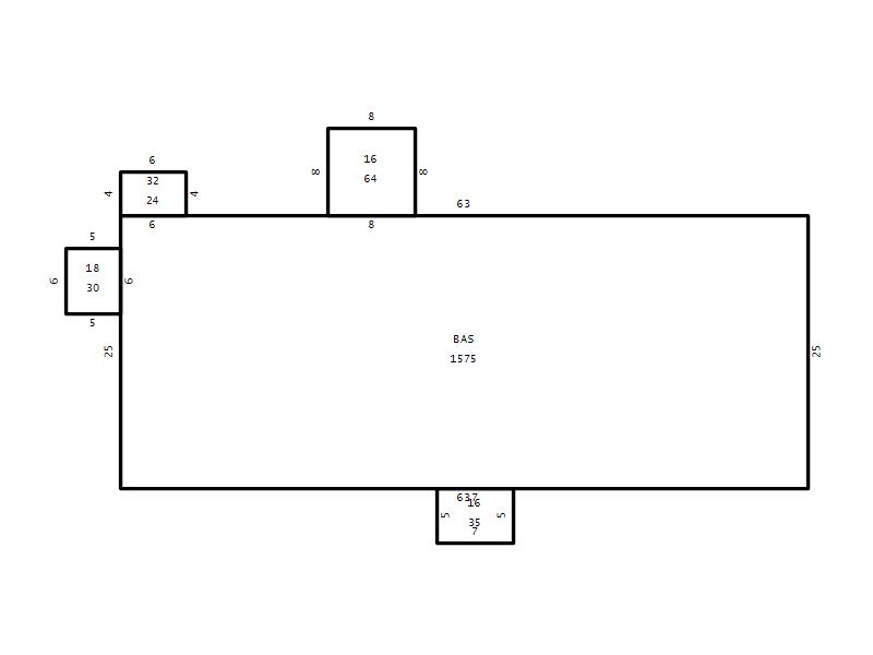
Living Area (SQFT) 1575
Number of Stories 1.00
Style RAN-RANCH
Foundation 04-P-FOOTING/CRWL-SP
Exterior 08-VINYL/ALUMINUM
Const Type
Heating 06-HEAT-PUMP
Air Cond
Plumbing Baths (Full):   2
Baths (Half):   0
Extra Fixtures:   0
Total Plumbing Fixtures:   6 
Bedrooms 3
Main Body (SQFT) 1575
Year Built 1983
Additions 4
Effective Year 1983
Remodeled 0
Interior Adj.
Other Features
Building Total & Improvement Details

Grade C+ 110%
Percentage Complete 100
Total Adjusted Replacement Cost New $291,556
Physical Depreciation (% Bad) 0%
Depreciated Value $201,174
Economic Depreciation (% Bad) 0%
Functional Depreciation (% Bad) 0%
Total Depreciated Value $201,174
Market Area Factor 1.00
Building Value $201,174
Misc Improvements Value $16,626
Total Improvement Value $217,800

Assessed Land Value $113,400
   
Assessed Total Value $331,200



Addition Summary 
StoryTypeCodeArea
1.00 Frame Deck 16 64
1.00 Covered Porch 18 30
1.00 Storage Utility 32 24
1.00 Frame Deck 16 35
 
Other Improvements 
UnitsDescriptionItemCodeYear% BadValue
13x20 DIMENSIONS Carport w/Floor 2004 35 5658
14x24 DIMENSIONS Garage Frame 2001 40 10968
 


Building Sketch
Photograph
Building Sketch Building Photo
(Click sketch for bigger image)




Copyright © 2022 Durham County, North Carolina.