Building Summary

Data last updated on: 4/2/2026     Ownership current as of: 3/30/2026     Tax Year: 2026
REID 127406

PIN # 0823-67-2623

Location Address Property Description
812 CHALK LEVEL RD SWEETBAY/SEC:01/BLK:A/LT# 07 PL:000103-000045
   
Property Owner Owner's Mailing Address
GAAJP LLC
4030 WAKE FOREST RD STE 349
RALEIGH NC 27609
Parcel
Buildings
Misc Improvements
Land
Deeds
Notes
Sales
Photos
Map
Building Location Address
812 CHALK LEVEL RD
Building Description
RESFR-RES-FRM-OR-EQ
Card   of  1
Bldg Type RESIDENTIAL
Units 1
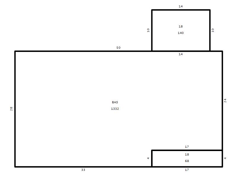
Living Area (SQFT) 1332
Number of Stories 1.00
Style RAN-RANCH
Foundation 04-P-FOOTING/CRWL-SP
Exterior 09-HARD-B/CEMENTBRD
Const Type
Heating 05-PACKAGE-HEAT/COOL
Air Cond
Plumbing Baths (Full):   2
Baths (Half):   0
Extra Fixtures:   0
Total Plumbing Fixtures:   6 
Bedrooms 3
Main Body (SQFT) 1332
Year Built 1983
Additions 2
Effective Year 1983
Remodeled 0
Interior Adj.
Other Features
Building Total & Improvement Details

Grade C+ 110%
Percentage Complete 100
Total Adjusted Replacement Cost New $276,992
Physical Depreciation (% Bad) 0%
Depreciated Value $191,124
Economic Depreciation (% Bad) 0%
Functional Depreciation (% Bad) 0%
Total Depreciated Value $191,124
Market Area Factor 1.00
Building Value $191,124
Misc Improvements Value
Total Improvement Value $191,124

Assessed Land Value $108,000
   
Assessed Total Value $299,124



Addition Summary 
StoryTypeCodeArea
1.00 Covered Porch 18 68
1.00 Covered Porch 18 140
 
Other Improvements 
 


Building Sketch
Photograph
Building Sketch Building Photo
(Click sketch for bigger image)




Copyright © 2022 Durham County, North Carolina.