Building Summary

Data last updated on: 4/2/2026     Ownership current as of: 3/30/2026     Tax Year: 2026
REID 127444

PIN # 0823-67-5993

Location Address Property Description
6 SWEETBAY CT SWEETBAY/SEC:03/LT#05 PL:000105-000163
   
Property Owner Owner's Mailing Address
ALTO ASSET COMPANY 3 LLC
3903 S CONGRESS AVE STE 40298
AUSTIN TX 78704
Parcel
Buildings
Misc Improvements
Land
Deeds
Notes
Sales
Photos
Map
Building Location Address
6 SWEETBAY CT
Building Description
RESFR-RES-FRM-OR-EQ
Card   of  1
Bldg Type RESIDENTIAL
Units 1
Living Area (SQFT) 1248
Number of Stories 2.00
Style CAP-CAPE-COD
Foundation 04-P-FOOTING/CRWL-SP
Exterior 01-WOOD-PANEL
Const Type
Heating 05-PACKAGE-HEAT/COOL
Air Cond
Plumbing Baths (Full):   2
Baths (Half):   0
Extra Fixtures:   0
Total Plumbing Fixtures:   6 
Bedrooms 3
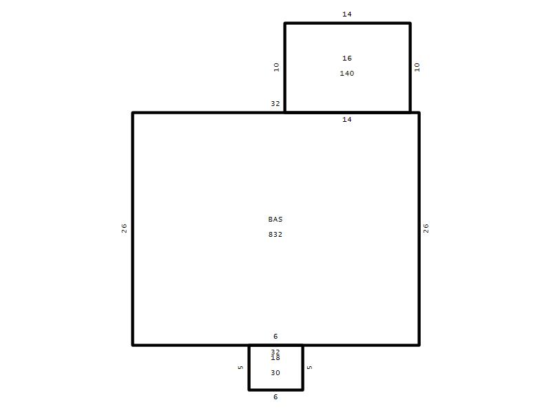
Main Body (SQFT) 832
Year Built 1985
Additions 3
Effective Year 1985
Remodeled 0
Interior Adj.
Other Features
Building Total & Improvement Details

Grade C 100%
Percentage Complete 100
Total Adjusted Replacement Cost New $237,996
Physical Depreciation (% Bad) 0%
Depreciated Value $166,597
Economic Depreciation (% Bad) 0%
Functional Depreciation (% Bad) 0%
Total Depreciated Value $166,597
Market Area Factor 1.00
Building Value $166,597
Misc Improvements Value
Total Improvement Value $166,597

Assessed Land Value $107,100
   
Assessed Total Value $273,697



Addition Summary 
StoryTypeCodeArea
1.00 Frame Deck 16 140
1.00 Covered Porch 18 30
1.00 Res Frame 2Nd Flr FR02 416
 
Other Improvements 
UnitsDescriptionItemCodeYear% BadValue
8x8 DIMENSIONS Shed Personal Property 2000 75
 


Building Sketch
Photograph
Building Sketch Building Photo
(Click sketch for bigger image)




Copyright © 2022 Durham County, North Carolina.