Building Summary

Data last updated on: 4/2/2026     Ownership current as of: 3/30/2026     Tax Year: 2026
REID 128394

PIN # 0823-62-0972

Location Address Property Description
2806 SHAFTSBURY ST LOCKELAND/SEC:01/BLK:L/LT #09 PL:00018A-000008
   
Property Owner Owner's Mailing Address
SPELLMAN, TYANA
2806 SHAFTSBURY ST
DURHAM NC 27704
Parcel
Buildings
Misc Improvements
Land
Deeds
Notes
Sales
Photos
Map
Building Location Address
2806 SHAFTSBURY ST
Building Description
RESFR-RES-FRM-OR-EQ
Card   of  1
Bldg Type RESIDENTIAL
Units 1
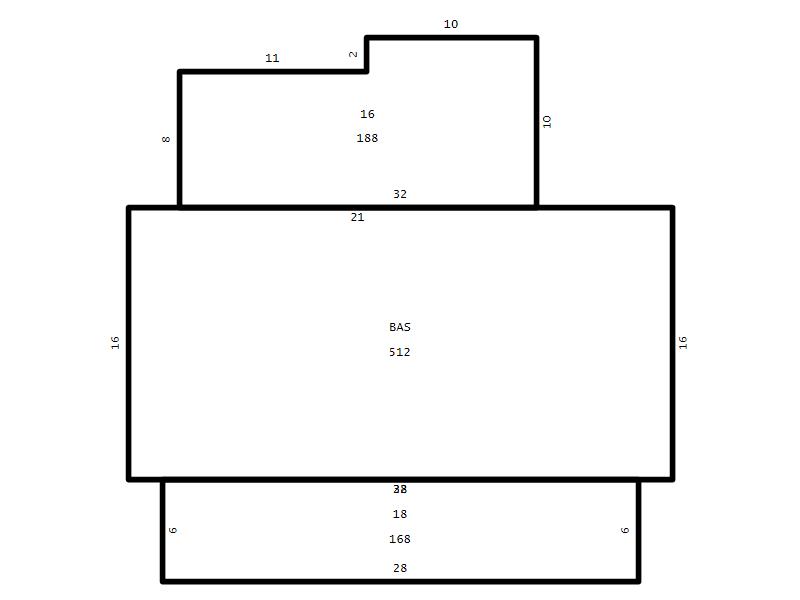
Living Area (SQFT) 1024
Number of Stories 2.00
Style CON-CONVENTIONAL
Foundation 04-P-FOOTING/CRWL-SP
Exterior 09-HARD-B/CEMENTBRD
Const Type
Heating 06-HEAT-PUMP
Air Cond
Plumbing Baths (Full):   1
Baths (Half):   0
Extra Fixtures:   0
Total Plumbing Fixtures:   3 
Bedrooms 2
Main Body (SQFT) 512
Year Built 1984
Additions 3
Effective Year 1984
Remodeled 0
Interior Adj.
Other Features
Building Total & Improvement Details

Grade C 100%
Percentage Complete 100
Total Adjusted Replacement Cost New $204,302
Physical Depreciation (% Bad) 0%
Depreciated Value $140,968
Economic Depreciation (% Bad) 0%
Functional Depreciation (% Bad) 0%
Total Depreciated Value $140,968
Market Area Factor 1.00
Building Value $140,968
Misc Improvements Value
Total Improvement Value $140,968

Assessed Land Value $140,400
   
Assessed Total Value $281,368



Addition Summary 
StoryTypeCodeArea
1.00 Frame Deck 16 188
1.00 Covered Porch 18 168
1.00 Res Frame 2Nd Flr FR02 512
 
Other Improvements 
UnitsDescriptionItemCodeYear% BadValue
8x12 DIMENSIONS Shed Personal Property 1984 75
 


Building Sketch
Photograph
Building Sketch Building Photo
(Click sketch for bigger image)




Copyright © 2022 Durham County, North Carolina.