Building Summary

Data last updated on: 1/30/2026     Ownership current as of: 1/16/2026     Tax Year: 2026
REID 128807

PIN # 0832-39-5005

Location Address Property Description
511 E MAYNARD AVE PROP-BOONE W H PL:000015-000008
   
Property Owner Owner's Mailing Address
REFUGE PROPERTY SOLUTIONS LLC
453 BIG WILLOW WAY
ROLESVILLE NC 27571

Value subject to change, property assessment under review

Parcel
Buildings
Misc Improvements
Land
Deeds
Notes
Sales
Photos
Map
Building Location Address
511 E MAYNARD AVE
Building Description
RESFR-RES-FRM-OR-EQ
Card   of  1
Bldg Type RESIDENTIAL
Units 1
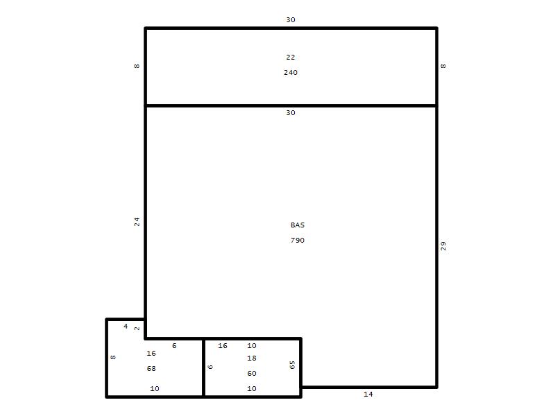
Living Area (SQFT) 790
Number of Stories 1.00
Style RAN-RANCH
Foundation 04-P-FOOTING/CRWL-SP
Exterior 08-VINYL/ALUMINUM
Const Type
Heating 04-UNIT-HEAT
Air Cond
Plumbing Baths (Full):   1
Baths (Half):   0
Extra Fixtures:   0
Total Plumbing Fixtures:   3 
Bedrooms 2
Main Body (SQFT) 790
Year Built 1930
Additions 3
Effective Year 1930
Remodeled 0
Interior Adj.
Other Features
Building Total & Improvement Details

Grade C 100%
Percentage Complete 100
Total Adjusted Replacement Cost New
Physical Depreciation (% Bad) 0%
Depreciated Value
Economic Depreciation (% Bad) 0%
Functional Depreciation (% Bad) 0%
Total Depreciated Value
Market Area Factor 1.15
Building Value
Misc Improvements Value
Total Improvement Value

Assessed Land Value
   
Assessed Total Value



Addition Summary 
StoryTypeCodeArea
1.00 Frame Deck 16 68
1.00 Covered Porch 18 60
1.00 Enclosed Porch 22 240
 
Other Improvements 
UnitsDescriptionItemCodeYear% BadValue
12x12 DIMENSIONS Shed (Open Pole) 1930 75
 


Building Sketch
Photograph
Building Sketch Building Photo
(Click sketch for bigger image)




Copyright © 2022 Durham County, North Carolina.