Building Summary

Data last updated on: 1/30/2026     Ownership current as of: 1/16/2026     Tax Year: 2026
REID 129103

PIN # 0832-57-8462

Location Address Property Description
1003 E CLUB BLVD BOULEVARD HGHTS/BLK:D/LT# 02 PL:00006B-000192
   
Property Owner Owner's Mailing Address
PRATER, DAVID ALLEN
1003 E CLUB BLVD
DURHAM NC 27704
Parcel
Buildings
Misc Improvements
Land
Deeds
Notes
Sales
Photos
Map
Building Location Address
1003 E CLUB BLVD
Building Description
RESFR-RES-FRM-OR-EQ
Card   of  1
Bldg Type RESIDENTIAL
Units 1
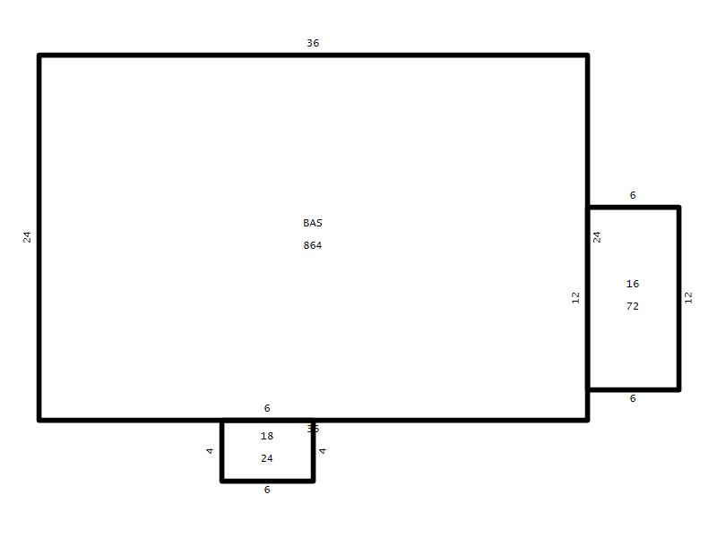
Living Area (SQFT) 864
Number of Stories 1.00
Style RAN-RANCH
Foundation 04-P-FOOTING/CRWL-SP
Exterior 08-VINYL/ALUMINUM
Const Type
Heating 05-PACKAGE-HEAT/COOL
Air Cond
Plumbing Baths (Full):   1
Baths (Half):   0
Extra Fixtures:   0
Total Plumbing Fixtures:   3 
Bedrooms 2
Main Body (SQFT) 864
Year Built 1950
Additions 2
Effective Year 1950
Remodeled 0
Interior Adj.
Other Features
Building Total & Improvement Details

Grade C 100%
Percentage Complete 100
Total Adjusted Replacement Cost New $178,937
Physical Depreciation (% Bad) 0%
Depreciated Value $169,990
Economic Depreciation (% Bad) 0%
Functional Depreciation (% Bad) 0%
Total Depreciated Value $169,990
Market Area Factor 1.15
Building Value $195,488
Misc Improvements Value $426
Total Improvement Value $195,914

Assessed Land Value $87,750
   
Assessed Total Value $283,664



Addition Summary 
StoryTypeCodeArea
1.00 Frame Deck 16 72
1.00 Covered Porch 18 24
 
Other Improvements 
UnitsDescriptionItemCodeYear% BadValue
12x16 DIMENSIONS Shed (Open Pole) 1950 75 426
 


Building Sketch
Photograph
Building Sketch Building Photo
(Click sketch for bigger image)




Copyright © 2022 Durham County, North Carolina.